- Tylko online
Masz pytania? Chciałbyś negocjować cenę
Zadzwoń! 577 575 011
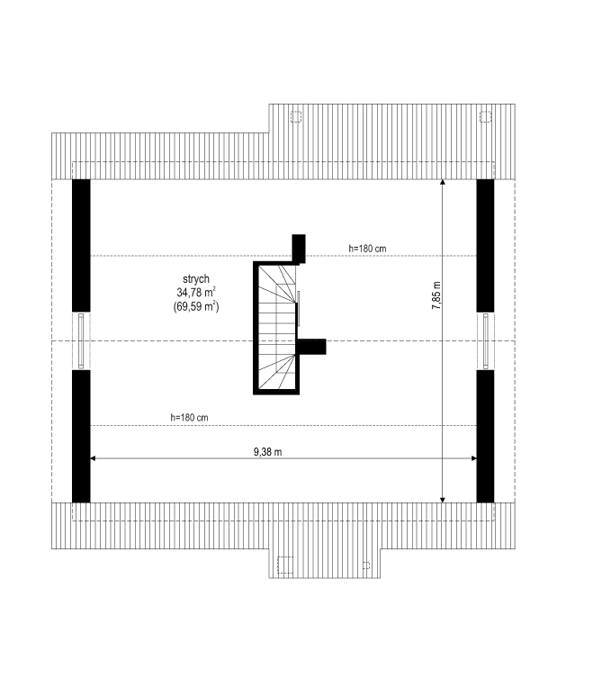
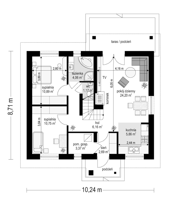
Projekt domu Kajtek to niewielki, przeznaczony dla 3- 4-osobowej rodziny dom jednorodzinny. Budynek parterowy, przekryty dwuspadowym dachem. Prosta bryła domu połączona z nowoczesnym detalem i zastosowanymi materiałami tworzą udaną całość. Projekt domu Kajtek ma bezpretensjonalny a zarazem oryginalny wygląd. Wnętrze mieści w sobie wygodne trzypokojowe mieszkanie, z salonem, półotwartą kuchnią, dwiema sypialniami, łazienką i kotłownią dostępną z przedsionka. Po schodach można dostać się na strych, który - choć w projekcie traktowany jako nieużytkowy - bardzo łatwo można zaadaptować na poddasze użytkowe z dodatkowymi pokojami. W projekcie domu Kajtek zastosowano oddzielenie części dziennej od nocnej - z sypialniami. W salonie centralnym elementem jest kominek, oraz zabiegowe ozdabiające wnętrze schody. Szerokie drzwi balkonowe otwierają widok na częściowo zadaszony taras i ogród. Pracownia posiada odbicie lustrzane projektu.
