- Tylko online
Masz pytania? Chciałbyś negocjować cenę
Zadzwoń! 577 575 011
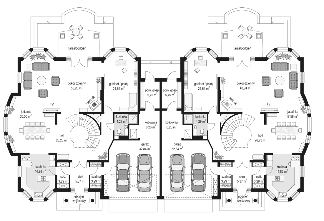
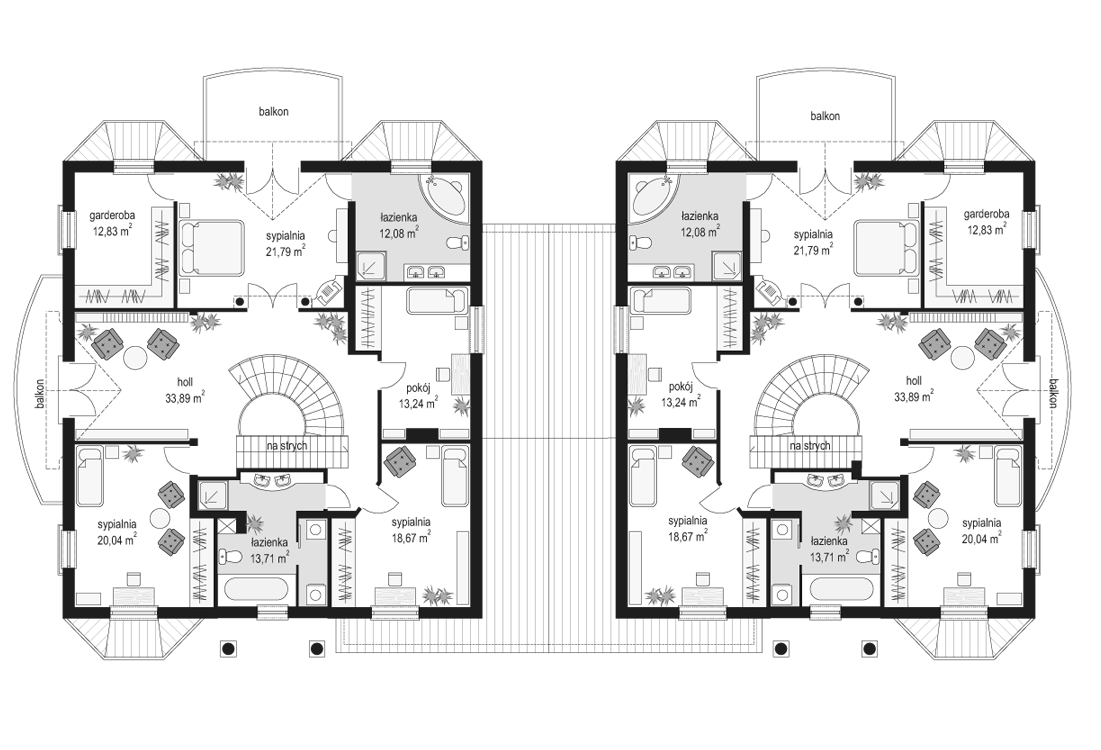
Projekt domu Komorów to rzadko spotykane połączenie klasycznej willowej architektury z formą budynku bliźniaczego. Jednak w dobie wysokich cen atrakcyjnych gruntów, może okazać się ciekawe. Ponadto w czasie gdy wielu Inwestorów decyduje się na budowę dwóch domów - aby po sprzedaży jednego zrekompensować część kosztów budowy. Budowa budynków bliźniaczych staje się coraz modniejsza. Dom Komorów wzorowany jest na miejskich willach okresu międzywojennego, częściowo też na amerykańskich rezydencjach dla wyższej klasy średniej. Piętrowa bryła każdej z połówek zbudowana jest na planie zbliżonym do kwadratu. Projekty domów połączone zostały garażami. Wykusze, balkony, fronton wejściowy na kolumnach i taras ogrodowy - wszystkie te elementy ozdabiają bryłę domu i tworzą harmonijną całość. Wnętrze projektu domu Komorów rozwiązano wokół centralnego holu z pięknymi zabiegowymi schodami z otwarciem przestrzennym stropu. Na parterze mieści się obszerny salon, jadalnia i kuchnia, oraz dodatkowo gabinet - biblioteka, mogący być również sypialnią gościnną. W części gospodarczej dostępnej z szatni przy przedsionku znajduje się wygodny dwustanowiskowy garaż, oraz dwa pomieszczenia gospodarcze. Na piętrze zaprojektowano apartament rodziców z garderobą i własnym tarasem z widokiem na ogród, oraz trzy sypialnie z łazienką z holu. Hol został powiększony o aneks wieczorny - również z tarasem. W razie potrzeby z holu można wygrodzić dodatkowy pokój. Projekt domu Komorów jest dostępny również w odbiciu lustrzanym. Zapraszam! UWAGA! Koszty realizacji oraz dane techniczne dotyczą połowy bliźniaka.
