- Tylko online
Masz pytania? Chciałbyś negocjować cenę
Zadzwoń! 577 575 011
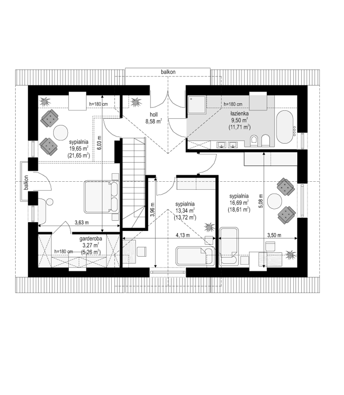
Projekt domu Koniczynka to uroczy domek jednorodzinny dla 4- 5-osobowej rodziny - parterowy z poddaszem użytkowym, z wbudowanym garażem. Jego prosta bryła i nieskomplikowana konstrukcja zapewni łatwą i niedrogą budowę. Jednocześnie niewielka powierzchnia domu, połączona z funkcjonalnością i sensownym układem pomieszczeń, da oszczędności w późniejszym utrzymaniu budynku. Prostokątny rzut domu Koniczynka przekrywa dwuspadowy dach, ozdobiony od przodu i od ogrodu szerokimi lukarnami. Wygląd zewnętrzny Koniczynki łączy w sobie tradycyjną, solidną formę, oraz nowoczesne materiały i detale architektoniczne. Lekka, prosta bryła, o symetrycznych elewacjach ma w sobie jednocześnie dużo wdzięku i elegancji. Wnętrze domu zaprojektowano z podziałem na parter – jako część dzienną i gospodarczą z garażem, oraz poddasze – z sypialniami domowników. Na parterze udało się uzyskać piękny salon z jadalnią, połączony przestrzennie z holem, z wyeksponowanymi eleganckimi schodami na poddasze. Do tego na dolnej kondygnacji mamy jeszcze ładną ustawną kuchnię, duży przedsionek - z połączeniem z garażem i kotłownią, oraz wc. Z salonu zaprojektowano wyjście na taras, częściowo osłonięty narożnym podcieniem. Na poddaszu przewidziano trzy bardzo ładne sypialnię i dużą łazienkę. Sypialnia rodziców posiada własną garderobę i balkonik. Wariantowo przewidziano wydzielenie ścianą działową czwartego pomieszczenia na przykład domowego biura. Pracownia posiada wersję odbicia lustrzanego projektu domu Koniczynka.
