- Tylko online
Masz pytania? Chciałbyś negocjować cenę
Zadzwoń! 577 575 011
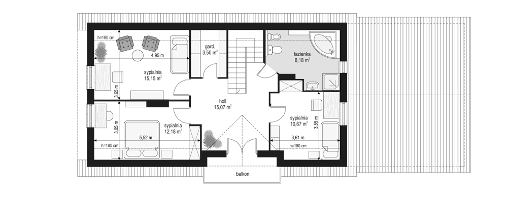
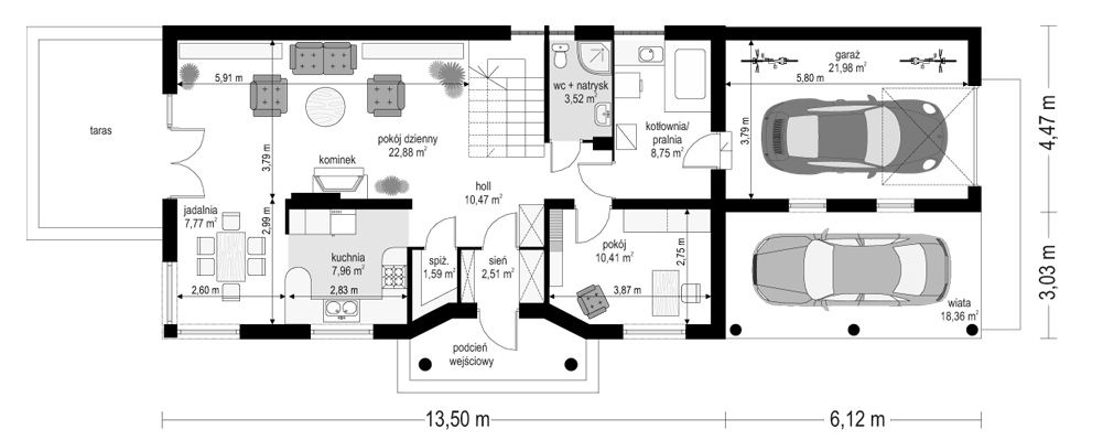
Projekt domu Krzysztof to willa jednorodzinna dla rodziny 4- 5-osobowej. Projekt przeznaczony jest na wąską działkę, o szerokości nawet 15 m. Ozdobny fronton z balkonem i wciętym przedsionkiem oraz dach naczółkowy tworzą miłą dla oka sylwetkę domu. Dobudowane garaże w zależności od ustawienia na działce mogą mieć drzwi na stronę frontową lub na boczną. Wnętrze domu Krzysztof: na parterze zaprojektowano salon połączony z aneksem jadalnym i holem, kuchnię, oraz gabinet. Na poddaszu mieszczą się trzy sypialnie z garderobą, łazienką i dużym holem-bawialnią (z wyjściem na balkon). Projekt domu Krzysztof dostępny jest też w odbiciu lustrzanym.
