- Tylko online
Masz pytania? Chciałbyś negocjować cenę
Zadzwoń! 577 575 011
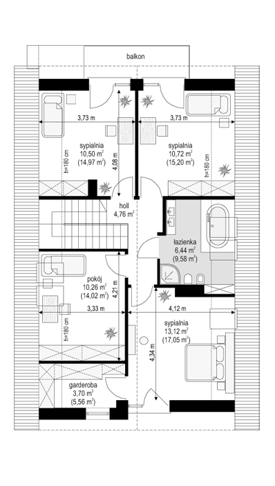
Projekt domu Lena to dom jednorodzinny, o nowoczesnej architekturze, przeznaczony dla 4- 5-osobowej rodziny. Projekt Lena to dom parterowy, z użytkowym poddaszem, zaprojektowany na prostokątnym rzucie, przykryty dwuspadowym symetrycznym dachem. Kształt bryły, forma budynku, zastosowane materiały, oraz detale projektu Lena podkreślają nowoczesność, energooszczędność i funkcjonalność budynku. Projekt domu Lena ma prostą konstrukcję, dom jest łatwy w budowie, co pozytywnie wpłynie na szybkość budowy i koszt realizacji. Wnętrze projektu domu Lena podzielono na część dzienną i gospodarczą na parterze i sypialnie na poddaszu. Na parterze projektu Lena zaprojektowaliśmy otwartą przestrzeń dzienną, z salonem, otwartą kuchnią holem z wyeksponowanymi we wnętrzu schodami. W projekcie domku Lena w salonie miejsce znalazły ściana kominkowa i ściana TV, miejsce na meble wypoczynkowe, oraz kącik jadalny, oraz szerokie przeszklone wyjście na częściowo zadaszony taras budynku. Na parterze domu Lena miejsce znalazły dodatkowo: wbudowany w bryłę domu jednostanowiskowy garaż i kotłownia - oba dostępne z przedsionka. Projekt Lena na poddaszu ma zaprojektowane cztery pokoje i obszerną łazienkę. Z sypialni rodziców jest dodatkowo dostępna garderoba. Dom Lena mimo niedużej powierzchni użytkowej 120,67 m2, mieści w sobie pięć pokoi, garaż i kotłownię – to sporo jak na tej wielkości budynek. Projekt domu Lena zaprojektowano jako energooszczędny. Dzięki bardzo dobremu ociepleniu przegród projektu Lena dom łatwo można dostosować do standardu NF40. Projekt budynku Lena dostępny jest też jako wersja w odbiciu lustrzanym.
