- Tylko online
Masz pytania? Chciałbyś negocjować cenę
Zadzwoń! 577 575 011
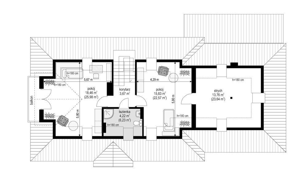
Projekt domu Magnolia to budynek jednorodzinny dla 4- 5-osobowej rodziny. Budynek jest parterowy z użytkowym poddaszem, oraz dobudowanym dwustanowiskowym garażem. Projekt domu Magnolia nawiązuje swoją architekturą do typowego polskiego dworku. W udany sposób połączono w nim tradycyjną formę z nowoczesną funkcją, materiałami i detalami. Dzięki otwarciu tarasów na dwie strony, na elewację tylną i boczną, dom może być posadowiony na działce z ogrodem w tylnej lub w bocznej części działki. Wszystko zależy od lokalizacji względem stron świata i od kształtu parceli. W trakcie adaptowania domu do lokalizacji można zrezygnować z któregoś z tarasów. Wewnątrz domu Magnolia, na parterze zaprojektowano salon z częścią jadalną połączony z holem i częściowo z kuchnią, sypialnię rodziców z garderobą w przestrzeni pod schodami, oraz dodatkowy pokoik - gabinet lub sypialnię gościnną. W części gospodarczej zaplanowano garaż i pomieszczenie gospodarcze - kotłownię. Na poddaszu miejsce znalazły dwie sypialnie dziecięce z łazienką. W projekcie domu Magnolia na uwagę zasługuje również strych nad garażem, który można wykorzystać jako przestrzeń użytkową.
