- Tylko online
Masz pytania? Chciałbyś negocjować cenę
Zadzwoń! 577 575 011
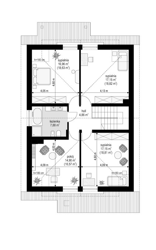
Projekt domu Mewa to domek jednorodzinny, dla 4- 5-osobowej rodziny. Projekt łączy w sobie tradycyjny solidny wygląd, bezpretensjonalność, prostotę konstrukcji, oraz funkcjonalność i klarowność wnętrza. Dom Mewa – dzięki zwartej bryle, zbudowanej na planie prostokąta, jest energooszczędny, a także łatwy i niedrogi w budowie. Dzięki dość wąskiej elewacji frontowej zmieści się na działce o szerokości zaledwie 16 m. Budynek w łatwy sposób można zamienić na bliźniaka, można z niego także zrobić szeregówkę. Prosty układ konstrukcyjny - parterowa bryła z poddaszem przekrytym dwuspadowym dachem – nie powinien sprawić kłopotów wykonawczych żadnej ekipie budowlanej. Właściwy stosunek powierzchni przegród zewnętrznych do uzyskanej kubatury sprzyja energooszczędności budynku. Wygląd zewnętrzny domu Mewa doskonale wpasuje się w sąsiednią zabudowę przedmieść. Elewacje urozmaicają duże lukarny w dwuspadowym dachu, wystający nieco garaż z podcieniem wejściowym, oraz – od tyłu – zadaszenie tarasu, na który możemy wyjść z salonu przez ładne przeszklone drzwi. Wnętrze domu podzielono na część dzienną, oraz gospodarczą na parterze i sypialnie na poddaszu. Na parterze zaprojektowano bardzo ładne jednoprzestrzenne wnętrze połączonego salonu z jadalnią, kuchnią i holem. Kuchnia jest otwarta na salon – można ją łatwo oddzielić ścianką działową. Pozostałe pomieszczenia parteru to wygodny garaż z magazynem pod schodami, kotłownia, łazienka i przedsionek. Na poddaszu znajdziemy cztery bardzo ładne, ustawne sypialnie, oraz łazienkę. Wnętrze można dowolnie modyfikować przestawiając ścianki działowe - zostawiając na przykład trzy sypialnie i dodając jeszcze jedną łazienkę i garderobę rodziców. Nad poddaszem jest jeszcze ładny strych, który również można zaadaptować. Projekt domu Mewa jest dla Klientów szukających prostej konstrukcji, bez udziwnień, chcących „wycisnąć” jak najwięcej powierzchni za rozsądne pieniądze. Pracownia posiada odbicie lustrzane projektu domu Mewa.
