- Tylko online
Masz pytania? Chciałbyś negocjować cenę
Zadzwoń! 577 575 011
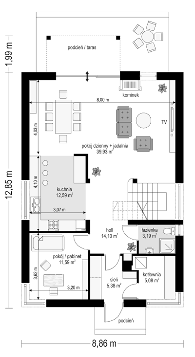
Projekt domu Miejski to przeznaczona dla 4- 5-osobowej rodziny willa, o prostej, łatwej w budowie bryle. Parterowy budynek z poddaszem użytkowym, przykryty dwuspadowym dachem. Tradycyjną bryłę domu połączono z nowoczesną stylistyką, materiałami i detalem, dzięki czemu udało się uzyskać bezpretensjonalną współczesną architekturę, pasującą do każdego otoczenia. Elewacje zostały urozmaicone ceglaną okładziną parteru, drewnianymi fragmentami ścian poddasza, oraz oryginalnie zaprojektowanymi oknami. Do tego frontowy i ogrodowy szczyt przyozdobiono balkonami. Balkon w elewacji tylnej jest jednocześnie zadaszeniem części tarasu. Duże przeszklenia okien i drzwi balkonowych otwierają wnętrze domu Miejski na ogród, więc taras jest naturalnym przedłużeniem salonu. We wnętrzu, na parterze zaprojektowano dużą przestrzeń dzienną, z salonem, jadalnią, holem i częściowo otwartą kuchnią. Dodatkowo na parterze zaplanowano kotłownię i pokój - gabinet lub sypialnię. Na poddaszu znajdują się trzy duże sypialnie, w tym sypialnię rodziców z własną garderobą, oraz dużą łazienką. Dom Miejski, jak na swoją wielkość jest bardzo przestronny, poszczególne pomieszczenia w nim są obszerne. Prosty i logiczny układ funkcjonalny powoduje, że każdy metr kwadratowy powierzchni jest właściwie wykorzystany. Pracownia posiada wersję odbicia lustrzanego projektu domu Miejski. Zapraszamy do zapoznania się ze wszystkimi domkami z tej serii: https://www.mgprojekt.com.pl/miejski, https://www.mgprojekt.com.pl/miejski-2, https://www.mgprojekt.com.pl/miejski-3, https://www.mgprojekt.com.pl/miejski-4
