- Tylko online
Masz pytania? Chciałbyś negocjować cenę
Zadzwoń! 577 575 011
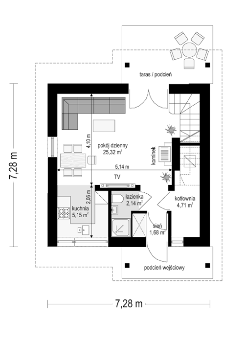
Projekt domu Mikrus to sympatyczny niewielki domek jednorodzinny dla 3-4 osobowej rodzinki. Projekt domu Mikrus jest mały, ale równocześnie pojemny i funkcjonalny. W niewielkiej kubaturze udało się zmieścić pełnoprawne czteropokojowe mieszkanie. Dom jest całoroczny, można go też wykorzystywać jako budynek letniskowy. Projekt domu Mikrus ma bardzo prostą bryłę. Zbudowany jest na planie kwadratu o boku 7,3 m, przekryty jest symetrycznym dwuspadowym dachem. Budynek ma prostą konstrukcję, jest łatwy i niedrogi w budowie, a przy tym – dzięki dobrym ociepleniom - energooszczędny i tani w późniejszym utrzymaniu. Wygląd zewnętrzny domu łączy w sobie tradycyjną formę, z nowoczesnymi detalami. Jest to prosta, oszczędna w wyrazie architektura, która dobrze wkomponuje się praktycznie w każde otoczenie. Wnętrze domu podzielono na część dzienną na parterze i sypialnie na poddaszu. Na parterze ładny pokój dzienny łączy się z kuchnią tworząc jedną otwartą przestrzeń. W salonie jest miejsce na kominek, ścianę TV, oraz kącik ze stołem jadalnym. Przy przedsionku zaprojektowano łazienkę i kotłownię. Kotłownia jest gazowa, ale można tam zastosować też kocioł na paliwo stałe. Sprytnie umieszczone schody nie zajmują dużo miejsca i są ozdobą salonu. Z pokoju dziennego szerokimi drzwiami balkonowymi wychodzimy na częściowo zadaszony taras i do ogrodu. Na poddaszu udało się zmieścić trzy niewielkie sypialnie oraz łazienkę. Poddasze można podzielić też w inny sposób – wedle uznania Inwestora - na przykład na dwie większe sypialnie. Projekt domu Mikrus jest niedrogi, łatwy w budowie i tani w późniejszym utrzymaniu. Ma wszystko, czego można oczekiwać od oszczędnego projektu. Pracownia posiada projekt w odbiciu lustrzanym.
