- Tylko online
Masz pytania? Chciałbyś negocjować cenę
Zadzwoń! 577 575 011
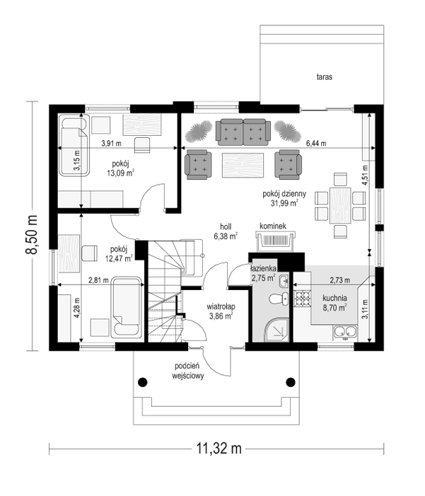
Projekt domu Miodowe Lata jest idealny dla dużej rodziny. Okazały, solidny dom z salonem i pięcioma pokojami zaprojektowano z myślą o 4- 6-osobowej rodzinie. Dom Miodowe Lata jest częściowo podpiwniczony - w piwnicy umieszczono kotłownię. Sylwetka domu prosta, bezpretensjonalna, ozdobiona dużym frontonem na słupach nad wejściem. Na poddaszu można wygospodarować dodatkowy pokój z dużego holu, lub urządzić tam bawialnię dla dzieci. Sypialnia rodziców ma własną garderobę i balkon. Projekt domu Miodowe Lata dostępny jest w odbiciu lustrzanym.
