- Tylko online
Masz pytania? Chciałbyś negocjować cenę
Zadzwoń! 577 575 011
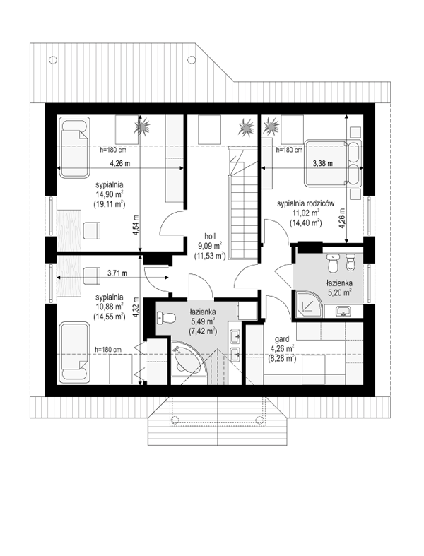
Projekt domu Na Wspólnej to dom jednorodzinny przeznaczony dla trzypokoleniowej rodziny, z odrębnym mieszkaniem dla dziadków lub dorosłych dzieci. Bryła domu jest prosta - rzut parteru o kształcie prostokąta przekryty poddaszem i dachem dwuspadowym. Wejście z domu zaakcentowano frontonem na dwóch kolumnach. Od strony ogrodu przewidziano zadaszony taras. Na parterze zaprojektowano wspólny dla obu mieszkań duży przedsionek z wejściem do kotłowni. W części odrębnego mieszkania znajdują się pokój dzienny z aneksem kuchennym, łazienka i sypialnia. W pozostałej części parteru: pokój dzienny z jadalnią i wygodnymi schodami, oraz kuchnia ze spiżarką. Na poddaszu umieszczono trzy sypialnie z dwiema łazienkami. Jedna z sypialni to oddzielna część państwa domu z ich łazienką i garderobą. Projekt domu Na Wspólnej można również zaadaptować likwidując oddzielne mieszkanie i zamieniając je na garaż i np. gabinet dostępny z pokoju dziennego.
