- Tylko online
Masz pytania? Chciałbyś negocjować cenę
Zadzwoń! 577 575 011
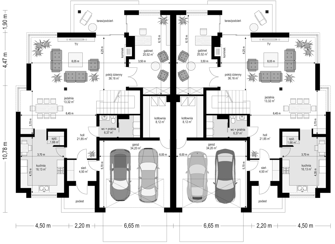
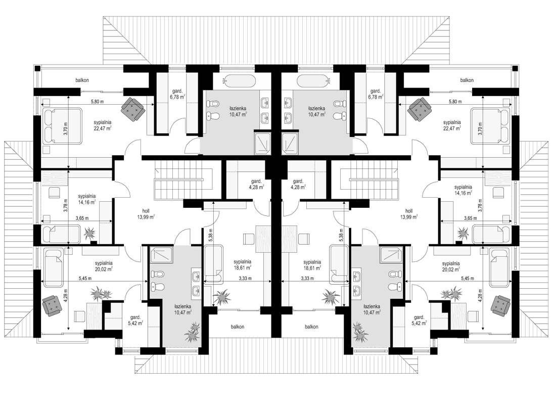
Projekt domu Neptun to duży, nowoczesny dom w zabudowie bliźniaczej. Każda połówka przewidziana została dla rodziny 4- 6-osobowej. Dom Neptun jest piętrowym budynkiem, przekrytym dachem wielospadowym. Budynek zaprojektowano używając nowoczesnych form i detali, jednak całości nadano spokojny, stonowany charakter. Bryła domu Neptun jest bardzo reprezentacyjna, pasująca do willowego otoczenia. Funkcję budynku podzielono na część dzienną z zapleczem gospodarczo-garażowym na parterze i sypialnie na piętrze. Na parterze zaprojektowano przestrzeń dzienną składającą się z salonu, jadalni i holu. W salonie na uwagę zasługują wbudowany we wnękę kominek, duże atrakcyjne przeszklenia na ogród, oraz reprezentacyjne schody na piętro. Kuchnia ze spiżarką została dyskretnie odgrodzona od jadalni. Z salonu szerokimi podwójnymi drzwiami dostajemy się do dużego gabinetu - biblioteki. Na parterze domu Neptun zaplanowano duży, dwustanowiskowy garaż. Kotłownię i wc z aneksem przewidzianą na pralnię lub schowek porządkowy. Na piętrze umieszczono apartament rodziców z pokojem kąpielowym i garderobą oraz balkonem - loggią z widokiem na ogród, oraz trzy wygodne sypialnie dzieci z garderobami lub szafami wbudowanymi i łazienką z holu. Pracownia posiada projekt domu Neptun w odbiciu lustrzanym. Zapraszamy! UWAGA! Koszty realizacji oraz dane techniczne dotyczą połowy bliźniaka.
