- Tylko online
Masz pytania? Chciałbyś negocjować cenę
Zadzwoń! 577 575 011
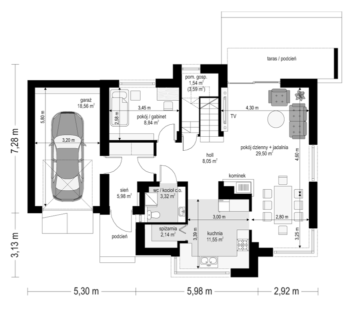
Projekt domu Nieduży to propozycja niewielkiego, piętrowego domu jednorodzinnego, przeznaczonego dla 4- 5-osobowej rodziny. Założeniem projektanta było połączenie nowoczesnej, ale spokojnej stylistyki, maksymalnej prostoty konstrukcji i funkcjonalności wnętrza domu. Z uwagi na problemy z pozwoleniami na budowę w naszym kraju na domy z płaskimi dachami pracownia zdecydowała się na zwieńczenie bryły czterospadowym dachem. Jednak bryła na tym nie traci - wręcz zyskuje. Dom Nieduży od zewnątrz stwarza wrażenie większego niż rzeczywiście jest. Monotonię kostki przerwano dodając do elewacji kubiczne wykusze, podcienie, balkony, duże przeszklenia - szczególnie od strony ogrodu, narożne okna, czy podział ścian na dwa poziome pasy w kontrastującej kolorystyce. Wnętrze domu podzielono na przestrzeń dzienną na parterze i pokoje sypialne na piętrze. Na dole zaprojektowano połączone wnętrze salonu, jadalni, holu i częściowo otwartej kuchni. Dodatkowo przy wejściu umieszczono garaż, oraz pokój, mogący służyć jako gabinet, biuro lub dodatkowa sypialnia. Kocioł c.o. umieszczono w łazience na parterze, a pod częścią schodów zaplanowano praktyczny schowek porządkowy. Na piętrze miejsce znalazły trzy duże sypialnie - w tym sypialnia rodziców z własną garderobą i balkonem, oraz bardzo przestronna łazienka. Pracownia posiada także projekt domu Nieduży w odbiciu lustrzanym.
