- Tylko online
Masz pytania? Chciałbyś negocjować cenę
Zadzwoń! 577 575 011
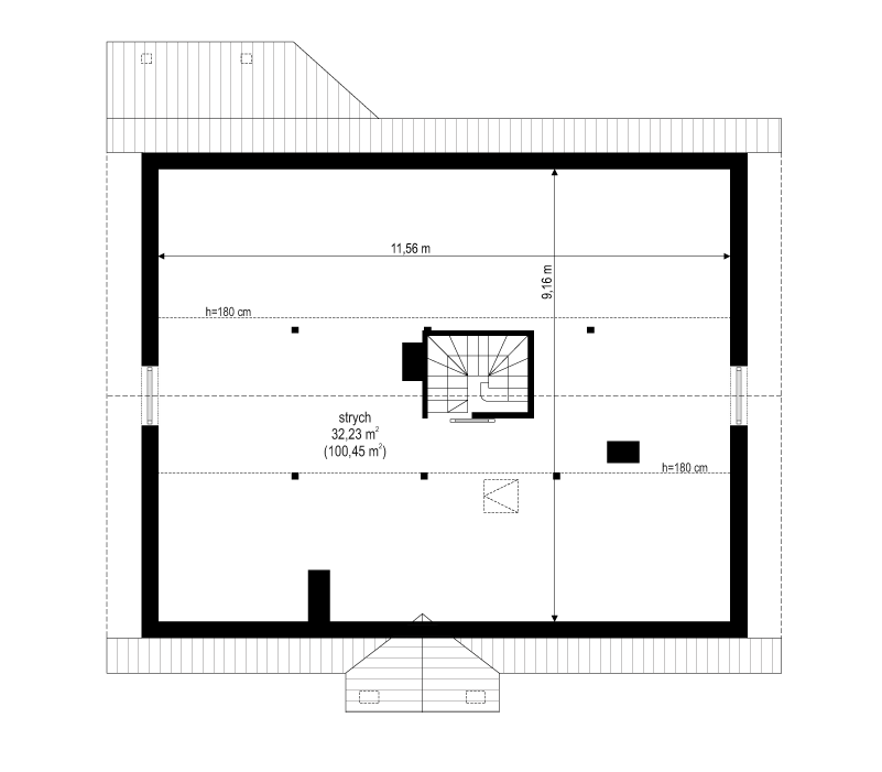
Projekt domu Niezapominajka to jednorodzinny, parterowy dom, przeznaczony dla czteroosobowej rodziny. Prostokątna bryła budynku została przekryta dwuspadowym dachem. Nieużytkowy strych nad parterem można łatwo zaadaptować na poddasze. Projekt domu Niezapominajka architektonicznie nawiązuje do typowej, tradycyjnej stylistyki. Front domu z zaakcentowanym gankiem wejściowym wspartym na dwóch kolumnach z oknami po bokach, przypomina polski dworek. Elewacja tylna została podporządkowana raczej funkcjonalności i zrezygnowano tu z symetrycznego układu - częściowo zadaszony taras ogrodowy stanowi przedłużenie salonu. Wnętrze domu Niezapominajka podzielono na część dzienną, z salonem, holem i częściowo otwartą kuchnią, oraz część nocną z trzema sypialniami i łazienką. W niewielkiej kotłowni można zainstalować piec gazowy. W holu obok kominka zaprojektowano miejsce na schody na strych. Projekt domu Niezapominajka stanowi świetną propozycję dla Inwestorów chcących niedrogo wybudować dom, jednocześnie zostawiając sobie możliwość wykończenia w drugim etapie dodatkowej przestrzeni na strychu - lub po prostu mieć duży przydatny przecież strych. Pracownia posiada wersję odbicia lustrzanego projektu Niezapominajka oraz innych jego wariantów: projekt domu Niezapominajka z garażem, projekt domu Niezapominajka z garażem 2.
