- Tylko online
Masz pytania? Chciałbyś negocjować cenę
Zadzwoń! 577 575 011
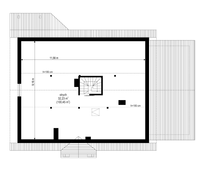
Projekt domu Niezapominajka z garażem jest wariantową wersją projektu domu Niezapominajka. Dom jednorodzinny, parterowy, zaprojektowany został z myślą o czteroosobowej rodzinie. Prostokątna bryła budynku z dobudowanym garażem została przekryta dwuspadowymi dachami. Nieużytkowy strych nad parterem można zaadaptować na poddasze. Architektonicznie dom Niezapominajka z Garażem nawiązuje do typowej tradycyjnej stylistyki. Front domu z zaakcentowanym gankiem wejściowym wspartym na dwóch kolumnach z oknami po bokach, przypomina klasyczny polski dworek. Wnętrze domu podzielono na część dzienną, z salonem, holem i częściowo otwartą kuchnią, oraz część nocną z trzema sypialniami i łazienką. W niewielkiej kotłowni można zainstalować kocioł gazowy, lub można przenieść kotłownię do pomieszczenia za garażem i umieścić tam kocioł na paliwo stałe. Projekt domu Niezapominajka z garażem stanowi świetną propozycję dla Inwestorów chcących niedrogo wybudować dom, którzy chcą zostawić sobie możliwość wykończenia w drugim etapie dodatkowej przestrzeni na strychu - lub po prostu mieć duży przydatny przecież strych. Projekt domu Niezapominajka z garażem dostępny jest także w odbiciu lustrzanym oraz innych jego wariantów: projekt domu Niezapominajka, projekt domu Niezapominajka z garażem 2.
