- Tylko online
Masz pytania? Chciałbyś negocjować cenę
Zadzwoń! 577 575 011
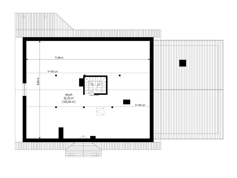
Projekt domu Niezapominajka z garażem 2 to wariant popularnego projektu Niezapominajka – tym razem z podwójnym garażem i obszerną częścią gospodarczą. Projekt domu Niezapominajka z garażem 2 to dom jednorodzinny, parterowy, przeznaczony dla 4- 5-osobowej rodziny. Prostokątna bryła budynku z dobudowanym garażem została przekryta dwuspadowymi dachami. Nieużytkowy strych nad parterem można zaadaptować na poddasze. Architektonicznie dom nawiązuje do typowej tradycyjnej stylistyki. Front domu z zaakcentowanym gankiem wejściowym wspartym na dwóch kolumnach z oknami po bokach, przypomina polski dworek. Wnętrze domu podzielono na część dzienną, z salonem, holem i częściowo otwartą kuchnią, oraz część nocną z trzema sypialniami i łazienką. Zaletą tej wersji projektu jest kotłownia przeniesiona do pomieszczenia za garażem, dzięki czemu dom można ogrzewać gazem, ale też zamiennie paliwem stałym. Projekt domu Niezapominajka z garażem 2 stanowi świetną propozycję dla inwestorów chcących niedrogo wybudować dom, którzy planują zostawić sobie możliwość wykończenia w drugim etapie dodatkowej przestrzeni na strychu – lub po prostu mieć duży przydatny przecież strych. Pracownia posiada wersję odbicia lustrzanego projektu oraz innych jego wariantów: projekt domu Niezapominajka, projekt domu Niezapominajka z garażem.
