- Tylko online
Masz pytania? Chciałbyś negocjować cenę
Zadzwoń! 577 575 011
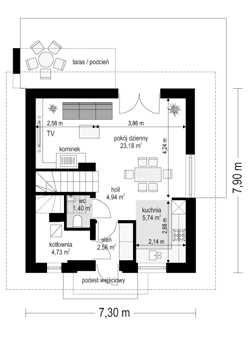
Projekt domu „Oleńka” to urocza propozycja dla 3- 4-osobowej rodziny. Dom zaprojektowaliśmy na planie zbliżonym do kwadratu, ma poddasze użytkowe przykryte dwuspadowym dachem. Projekt posiada wszystkie atuty, aby stać się ulubieńcem swoich przyszłych właścicieli. Architektura zewnętrzna domu to połączenie nowoczesnych detali i materiałów z tradycyjną formą „dachowca”. Projekt domu „Oleńka” z jednej strony jest skromny i powściągliwy w wyrazie, z drugiej strony ma w sobie nowoczesność, atrakcyjność i świeżość. Front domu ozdobiony jest okładzinami ścian z drewna, oraz balkonem będącym jednocześnie zadaszeniem nad wejściem. Elewację ogrodową urozmaica balkon – podcień wsparty na ścianie – słupie, oraz drewniana okładzina ścian. Wnętrze domu podzielono tradycyjnie na parter z częścią dzienną, oraz poddasze – z sypialniami i łazienką. Na parterze salon połączono z holem i kuchnią tworząc jednoprzestrzenne wnętrze, z kątem jadalnym, ścianę telewizyjną i kominkiem, a także szerokimi przeszklonymi drzwiami na taras i ogród. Znajdująca się przy przedsionku kotłownia gazowa może być bardzo łatwo zamieniona na kotłownię na paliwo stałe. Na poddaszu znajdują się sypialnie z szafami wbudowanymi i łazienka. Dom posiada świetną izolację termiczną, wykorzystuje nowoczesne instalacje i technologie, dzięki czemu jest energooszczędny. Właściwa proporcja kubatury do ilości przegród zewnętrznych - ścian i sufitów, pozwoli na niskie koszty utrzymania budynku. Dzięki prostej konstrukcji „Oleńka” jest niedroga w budowie. Projekt domu „Oleńka” występuje w wersji bez garażu, ale łatwo można doprojektować garaż z boku domu. Pracownia posiada wersję odbicia lustrzanego projektu. Zapraszamy!
