- Tylko online
Masz pytania? Chciałbyś negocjować cenę
Zadzwoń! 577 575 011
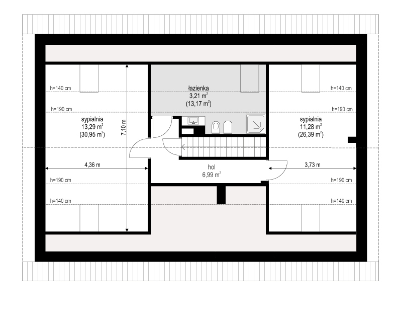
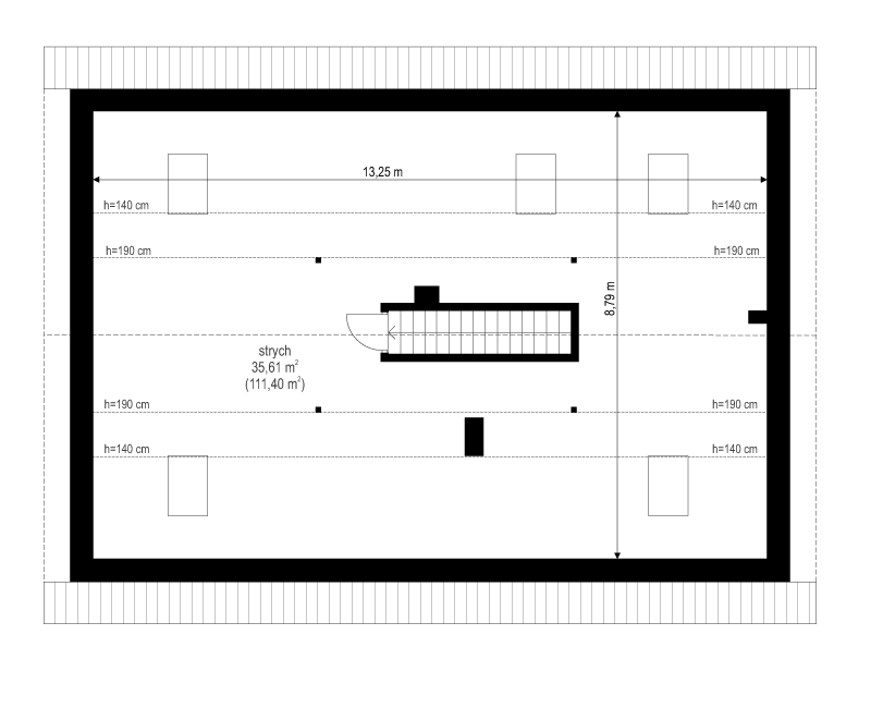
Projekt domu Oliwka 2 to kolejna odsłona projektu Oliwka – tym razem z betonowym stropem nad parterem i ze strychem do adaptacji na poddasze użytkowe. Domek w bardzo łatwy sposób z niecałych stu metrów powierzchni można zwiększyć o niemal 40 procent. Na poddaszu można z powodzeniem zmieścić dwa dodatkowe pokoje oraz łazienkę. Projekt ma wariantowo rozwiązany strych / poddasze: wariant podstawowy Oliwki 2 „A” ma jednoprzestrzenny strych do dowolnego zagospodarowania, a wariant „B” ma poddasze użytkowe składające się z dodatkowych dwóch pokoi z łazienką (dodatkowa powierzchnia poddasza wynosi 34,77 m2). Dom ma bardzo prostą bryłę, zbudowaną na planie prostokąta, przekrytą dwuspadowym dachem. Ciekawie rozmieszone okna, okładziny ścian, podcienie i nisze nadają budynkowi nowoczesnego dynamicznego wyglądu, udowadniając, że parterowy dom może być także ciekawy. Wszystkie potrzebne pomieszczenia znajdują się na parterze: obszerna cześć dzienna, z salonem, holem, aneksem jadalnym i kuchnią, a także trzy sypialnie z łazienkami. Dobre izolacje przegród zwiększają energooszczędność budynku. W połączeniu z wentylacją z rekuperacją dom będzie bardzo oszczędny w przyszłej eksploatacji. W domu można zamienić kocioł gazowy na kotłownię na paliwo stałe. Projekt domu Oliwka 2 to projektu przeznaczony dla rozwojowej rodziny, która będzie być może potrzebowała w przyszłości dodatkowej przestrzeni (poddasza). Ewentualnie jest to propozycja dla inwestorów chcących mieć dodatkową buforową przestrzeń gospodarczą lub magazynową poza pomieszczeniami mieszkalnymi. Projekt domu Oliwka 2 doskonale wpasuje się w każde otoczenie. Projekt nie wymaga dużej działki. Budynek jest bezpretensjonalny, ma logicznie zaprojektowane wnętrze.
