- Tylko online
Masz pytania? Chciałbyś negocjować cenę
Zadzwoń! 577 575 011
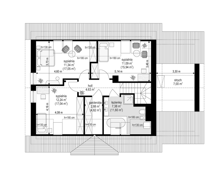
Projekt domu Optymalny 2 jest wersją wariantową Optymalnego, z dobudowanym do elewacji bocznej garażem jednostanowiskowym. Budynek jest parterowy z poddaszem użytkowym, zaprojektowany na planie prostokąta, przekryty dwuspadowym dachem. Prosta minimalistyczna bryła tworzy spokojną estetyczną architekturę, z nowoczesnymi detalami i materiałami. Elewacje zostały ciekawie urozmaicone: frontowa - podcieniem wejściowym zaakcentowanym dwuspadowym daszkiem, oraz narożnym oknem kuchni; ogrodowa - ładnymi przeszkleniami salonu, oraz narożnym podcieniem osłaniającym część tarasu. Projekt domu Optymalny 2 dzięki swojej bezpretensjonalności z powodzeniem wpasuje się w każde otoczenie. Wnętrze domu zaprojektowano z uwzględnieniem podziału na część dzienną na parterze i sypialnie na poddaszu. Na parterze salon, holl i kuchnia tworzą wspólną otwartą przestrzeń, w której znalazło się miejsce na aneks jadalny, kąt na meble wypoczynkowe, ścianę TV i kominek. Wygodne schody, nieco oddzielone od salonu są jednocześnie ozdobą wnętrza. Na parterze przewidzieliśmy miejsce na spiżarnię przy kuchni, dodatkowy pokój ( gabinet lub sypialnię gościnną), łazienkę i kotłownię, która w funkcjonalny sposób łączy przedsionek z garażem. Kotłownia gazowa, może być łatwo przystosowana do pieca na paliwo stałe. Garaż ma dodatkowe pomieszczenie gospodarcze. Na poddaszu umieszczono trzy wygodne sypialnie z szafami wbudowanymi, garderobę i przestronną łazienkę z oknami połaciowymi nad wanną. Projekt domu Optymalny 2 jest energooszczędny - zastosowano w nim bardzo dobre izolacje termiczne, oraz nowoczesne instalacje i technologie. Sama budowa domu, dzięki nieskomplikowanej konstrukcji, będzie łatwa i niedroga. Późniejsza eksploatacja budynku również będzie tania. Projekt domu Optymalny 2 to dom optymalny :-), w sam raz dla Inwestorów myślących praktycznie, oszczędnie, oraz lubiących nowoczesność osadzoną w tradycyjnej formie. Pracownia posiada odbicie lustrzane projektu.
