- Tylko online
Masz pytania? Chciałbyś negocjować cenę
Zadzwoń! 577 575 011
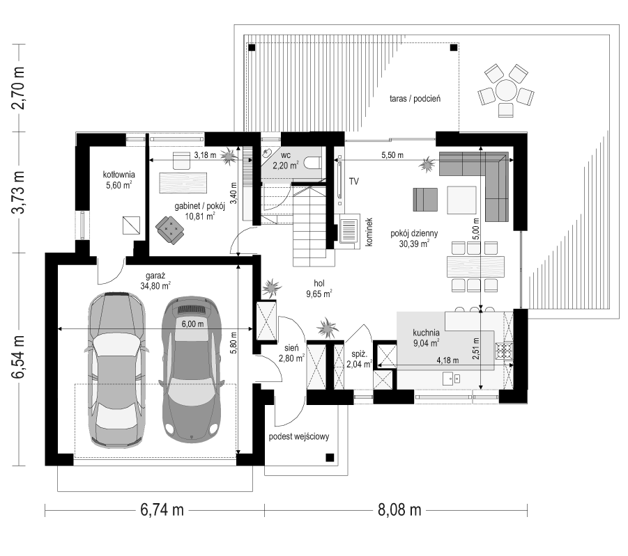
Projekt domu Party to budynek jednorodzinny, którego pierwowzorem jest większy projekt domu Gala z oferty naszej pracowni. Projekt domu Party przeznaczony jest dla 4- 5-osobowej rodziny. Budynek zaprojektowany został jako parterowa willa z użytkowym poddaszem, przekryta dwuspadowym dachem. Prosta bryła domu uzupełniona została wbudowanym częściowo wystającym garażem z płaskim dachem oraz zadaszeniem tarasu ogrodowego. Nowoczesna architektura domu łączy w sobie prostotę brył i płaszczyzn tworzących elewacje z dopracowanym detalem ciekawą kolorystyką i wysokiej jakości materiałami. Projektując dom postawiliśmy na prostotę i jakość architektury. Wnętrze domu Party podzielono na część dzienną i gospodarczą na parterze oraz sypialnie na poddaszu. Na dole połączony salon kuchnia i hol tworzą jedną otwartą przestrzeń dzienną domowników. Ozdobą wnętrza są ładnie wyeksponowane z wejścia schody na poddasze duże przeszklenia salonu i centralny kominek. Na parterze zaprojektowano dodatkowy pokój – sypialnię lub gabinet dwustanowiskowy garaż i kotłownię. W projekcie domu Party na poddaszu przewidziano trzy sypialnie: dwie dziecięce z szafami wnękowymi i wspólną łazienką oraz wygodną sypialnię rodziców z osobną łazienką i garderobą. Party posiada wszystko czego można oczekiwać od domu jednorodzinnego. Jest nowoczesny energooszczędny łatwy i niedrogi w budowie i późniejszym utrzymaniu a jego wnętrze jest funkcjonalne i przestronne. Pracownia posiada również wersję odbicia lustrzanego projektu Party. Zapraszamy do zapoznania się z całą serią "roztańczonych domów": https://www.mgprojekt.com.pl/makarena, https://www.mgprojekt.com.pl/bolero, https://www.mgprojekt.com.pl/lambada, https://www.mgprojekt.com.pl/party, https://www.mgprojekt.com.pl/party-2, https://www.mgprojekt.com.pl/biba, https://www.mgprojekt.com.pl/tango, https://www.mgprojekt.com.pl/salsa, https://www.mgprojekt.com.pl/rumba, https://www.mgprojekt.com.pl/mambo, https://www.mgprojekt.com.pl/mambo, https://www.mgprojekt.com.pl/fokstrot, https://www.mgprojekt.com.pl/samba.
