- Tylko online
Masz pytania? Chciałbyś negocjować cenę
Zadzwoń! 577 575 011
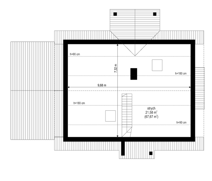
Projekt domu Perełka 2 to domek bliźniaczo podobny do popularnego projektu Klejnot. Tym razem dom przykryty jest dwuspadowym prostym dachem. Domek jest parterowy, przeznaczony dla 3- 4-osobowej rodziny. Bryła budynku zbudowana została na planie prostokąta z dobudowanym garażem. Wzbogacono ją gankiem wejściowym, wykuszem w elewacji bocznej i ogrodową werandą, będącą zadaszeniem nad częścią tarasu. Duże ładne przeszklenia z podziałami, fragmenty elewacji obłożone płytkami klinkierowymi, nowoczesne materiały - wszystkie te elementy tworzą udaną całość z tradycyjnym kształtem domu. Wnętrze domu Perełka 2 to wygodne trzypokojowe mieszkanie z zapleczem technicznym. Reprezentacyjny salon z kominkiem łączy się przestrzennie z kuchnią i holem. Dwie sypialnie z łazienką znajdują się w przeciwnym skrzydle domu, w części nocnej. Schodami prowadzącymi z przedsionka dostajemy się na strych - w projekcie domu Perełka 2 nieużytkowy, który jednak można łatwo zaadaptować na dodatkowe poddasze użytkowe. Z boku domu dobudowano jednostanowiskowy garaż. Pracownia dysponuje także wariantem projektu domu Perełka 2 w odbiciu lustrzanym, oraz wersją bez garażu, tańszą w budowie (Projekt domu Perełka).
