- Tylko online
Masz pytania? Chciałbyś negocjować cenę
Zadzwoń! 577 575 011
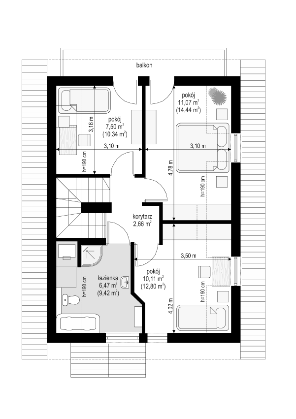
Projekt domu Pierwszy Dom to propozycja na Państwa pierwszy dom. Mieszcząc się na niewielkiej powierzchni i w niedużym budżecie, dostają Państwo wszystko, czego od prawdziwego domu można oczekiwać. Projekt domu Pierwszy Dom posiada na parterze obszerny salon z półotwartą kuchnią, pomieszczenie gospodarcze, na poddaszu trzy sypialnie i łazienkę. Pracownia dysponuje wersją z garażem z przodu oraz z boku domu. Dostępna jest również wersja projektu w odbiciu lustrzanym oraz innych propozycji tej serii: projekt domu Pierwszy Dom 1, projekt domu Pierwszy Dom 2, projekt domu Pierwszy Dom 3.
