- Tylko online
Masz pytania? Chciałbyś negocjować cenę
Zadzwoń! 577 575 011
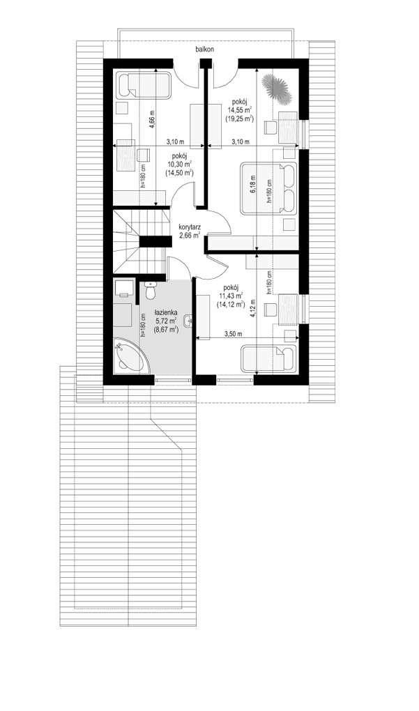
Projekt domu Pierwszy Dom 2 to wersja z garażem wysuniętym przed front domu. Budynek doskonale pasuje na wąską działkę. Prosta konstrukcja i oszczędność formy sprawiają, że będzie niedrogi w budowie. Funkcjonalne wnętrze mieści: na parterze obszerny salon z półotwartą kuchnią, pomieszczenie gospodarcze, garaż i dodatkowy pokój, na poddaszu trzy sypialnie i łazienkę. Pracownia dysponuje wersją z garażem z boku, pod nazwa Pierwszy Dom 3, oraz bez garażu, pod nazwą Pierwszy Dom. Dostępna jest również wersja krótsza - bez dodatkowego pokoju na parterze, oraz projekt domu Pierwszy Dom 2 w lustrzanym odbiciu. Podstawowa wersja projektu występuje w wersji z dwoma oknami lub jednym oknem w ścianie szczytowej na poddaszu nad wejściem. Inne propozycje tej serii: projekt domu Pierwszy Dom 1, projekt domu Pierwszy Dom 2, projekt domu Pierwszy Dom 3.
