- Tylko online
Masz pytania? Chciałbyś negocjować cenę
Zadzwoń! 577 575 011
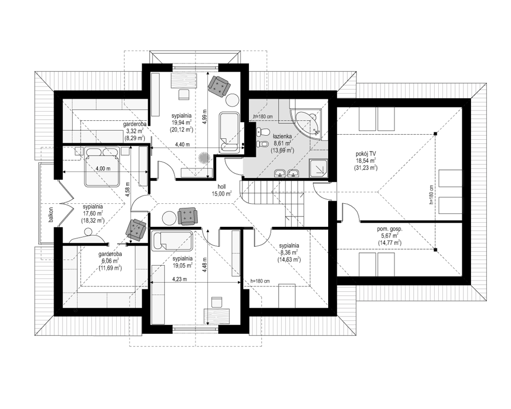
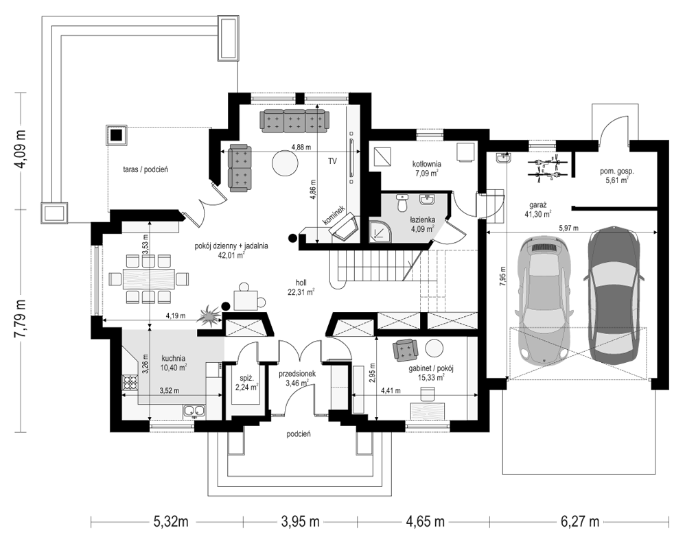
Projekt domu Pod Dębem to obszerny parterowa willa z poddaszem użytkowym. Przeznaczony jest dla 4- 5-osobowej rodziny. Bryła budynku przekryta została czterospadowym dachem. Z dużymi lukarnami na każdej stronie elewacji sprawia, że dom wygląda atrakcyjnie z każdej strony. Wygląd zewnętrzny urozmaicono wykuszami, balkonem oraz podcieniem ogrodowym. Front budynku Pod Dębem spodoba się Klientom ceniącym tradycyjną architekturę, ale nie koniecznie chcącym mieć kolumny przy wejściu do swojego domu. Wnętrze parteru to połączona przestrzeń holu, salonu, jadalni i kuchni, oraz dodatkowy pokój. Na poddaszu zaprojektowano cztery pokoje, oraz strych nad garażem, który można dowolnie wykorzystać. Projekt domu Pod Dębem dostępny jest też w odbiciu lustrzanym.
