- Tylko online
Masz pytania? Chciałbyś negocjować cenę
Zadzwoń! 577 575 011
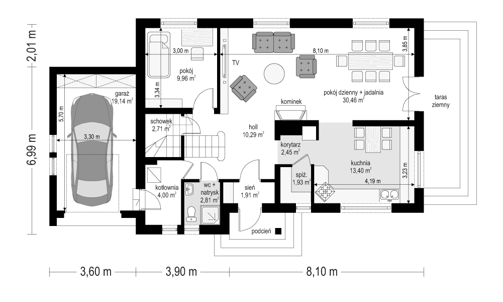
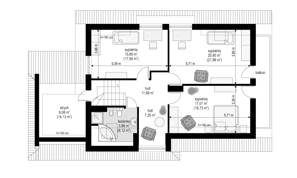
Projekt domu Pogodny 3 to reprezentacyjna willa z garażem, dla rodziny 4- 5-osobowej. Dom został rozplanowany w taki sposób, aby pasował również na wąską działkę, z ogrodem z boku. Wnętrze parteru to: duża kuchnia z kącikiem jadalnym, obszerny salon z kominkiem w środkowej części domu, kształtny hol z wygodnymi schodami. Na poddaszu zaprojektowano trzy duże sypialnie, łazienkę, hol z aneksem i strych nad garażem, który może pełnić funkcję dodatkowego pokoju. Projekt domu Pogodny 3 dostępny jest także w odbiciu lustrzanym.
