- Tylko online
Masz pytania? Chciałbyś negocjować cenę
Zadzwoń! 577 575 011
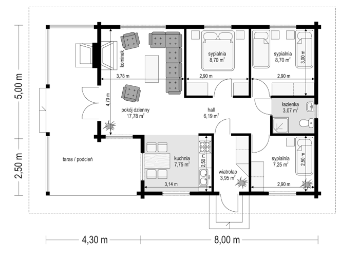
Projekt domu Pogodny Drewniany to mały i ekonomiczny domek z bali drewnianych. Parterowy, niepodpiwniczony, o prostej i wyważonej bryle, dla czteroosobowej rodziny. Może być traktowany zarówno jako dom jednorodzinny, jak i letniskowy. Budynek posiada czytelny i funkcjonalny rozkład pomieszczeń oraz wyraźny ich podział na strefy: dzienną i nocną, co daje poczucie komfortu i wygody. Obszerny zadaszony taras zapewnia możliwość korzystania z zewnętrznego kominka (grilla) bez względu na warunki atmosferyczne. Kominek, zlokalizowany w salonie umożliwia rozprowadzenie ciepła po całym domu. Projekt domu Pogodny Drewniany dostępny jest w technologii drewnianej oraz murowanej. Pracownia dysponuje także wersją z poddaszem użytkowym. Każdy z wariantów projektu dostępny jest ponadto w odbiciu lustrzanym. Komplet czterech egzemplarzy zawiera: projekt architektury domu, konstrukcji oraz schematy instalacji wewnętrznych. Na prośbę Inwestora, do projektu dołączamy zgodę na dokonanie zmian według życzenia Klienta.
