- Tylko online
Masz pytania? Chciałbyś negocjować cenę
Zadzwoń! 577 575 011
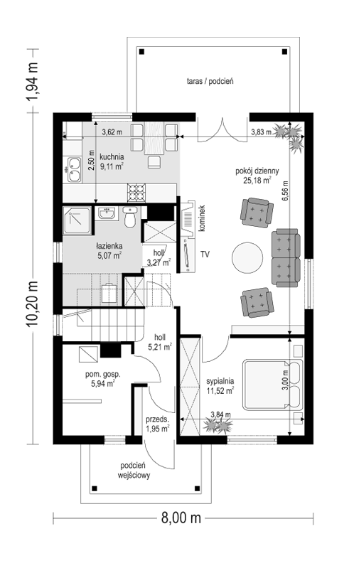
Projekt domu Praktyczny B to niewielki domek jednorodzinny dla czteroosobowej rodziny. Parterowy budynek z poddaszem użytkowym. Ten sam projekt przedstawiamy w dwóch wersjach wariantowych - jako dom jednorodzinne dla jednej rodziny, oraz jako dom dwulokalowy - z wydzielonymi dwoma mieszkaniami na parterze i na poddaszu. Prezentowana wersja projektu domu to budynek dwulokalowy - pomyślany w szczególności o rodzinach mieszkających razem, na przekład trzypokoleniowych. Mieszczanie dolne zajmować może wówczas główna rodzina, na górze może natomiast mieszkać dorosłe dziecko ze swoją rodziną. Dom Praktyczny B jest prosty w budowie, ma nieskomplikowaną konstrukcję - przez to koszty realizacji domu będą rozsądne. Częścią wspólną obu mieszkań jest wspólne wejście, kotłownia i klatka schodowa z korytarzem. Mieszkanie na parterze - to dwupokojowy apartament z kuchnią i łazienką. Na poddaszu natomiast znajdziemy lokal czteropokojowy (ewentualnie trzypokojowy z wydzieloną kuchnią). Projekt domu Praktyczny B może zainteresować wielopokoleniowe rodziny, może też być świetnym pomysłem na dom letniskowy - gdzie na raz, niezależnie od siebie przebywać mogą dwie rodziny. Zapraszamy do zapoznania się też z projektem domu Praktyczny A.
