- Tylko online
Masz pytania? Chciałbyś negocjować cenę
Zadzwoń! 577 575 011
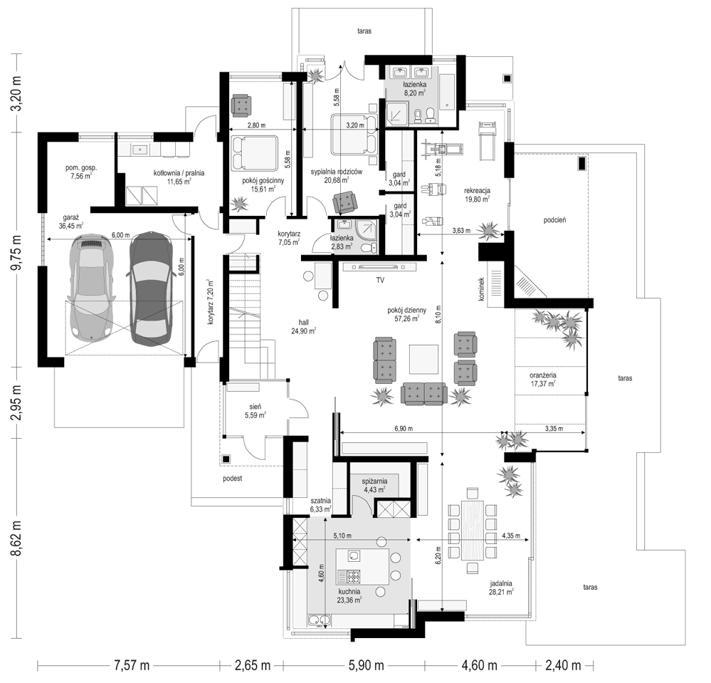
Projekt domu Prestiżowy to jeden z największych i najbardziej komfortowych w ofercie pracowni. Zaplanowany jako nowoczesna, piętrowa willa, o rozczłonkowanej, rozbudowanej bryle. Dom przewidziano dla dużej, 4- 7-osobowej rodziny. Zewnętrzna bryła to połączenie piętrowego rdzenia domu, z dobudowanymi parterowymi skrzydłami, oraz oranżerią i zadaszonym tarasem od strony ogrodu. Modernistyczne detale projektu takie jak fragmenty płaskich dachów, tarasy na piętrze, duże przeszklenia, czy narożne okna nadają domowi bardzo elegancki, ponadczasowy charakter. Wnętrze domu Prestiżowy zaprojektowano oddzielając jednoprzestrzenną część dzienną na parterze od intymnej części z sypialniami. Na parterze umieszczono duży salon otwarty na ogrodową oranżerię, połączony z pięknie oświetloną jadalnią i holem z reprezentacyjnymi schodami i otwarciem przestrzennym na antresolę na piętrze, a także z pokojem sportowym połączonym z zadaszonym podcieniem z kominkiem zewnętrznym. Z holu i jadalni docieramy do wygodnej kuchni z wyspą i spiżarnią. Z narożnego okna kuchennego obserwować można wejście do budynku. Przedsionek wejściowy jest całkowicie przeszklony - tak, aby wejście do domu miało maksymalnie reprezentacyjny charakter. W projekcie Prestiżowy, na parterze znajduje się sypialnia państwa domu z garderobami, łazienką i własnym tarasem, oraz dodatkowy pokój gościnny. W osobnej części domu umieszczono pomieszczenia gospodarcze i garaż. Piętro to królestwo dzieci - aż cztery sypialnie, w tym jedna z własną łazienką, oraz gabinet-biblioteka, z pięknym oknem narożnym z widokiem na front działki. Projekt domu Prestiżowy dostępny jest także w wersji odbicia lustrzanego.
