- Tylko online
Masz pytania? Chciałbyś negocjować cenę
Zadzwoń! 577 575 011
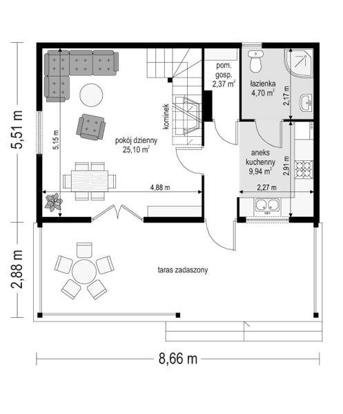
Projekt domu Przepiórka to domek jednorodzinny mogący służyć również jako letniskowy. Niewielki budynek, o prostej konstrukcji jest tani w budowie i ekonomiczny w późniejszej eksploatacji. Projekt domu Przepiórka składa się z pokoju dziennego na parterze, oraz łazienki, pomieszczenia gospodarczego i kuchni. Na poddaszu natomiast - z dwóch pokoi sypialnych. Atutem projektu domu Przepiórka jest wielka zadaszona weranda, gdzie można schronić się przed słońcem lub deszczem. Weranda w projekcie domku Przepiórka połączona jest z salonem podwójnymi balkonowymi drzwiami, oraz drzwiami wejściowymi. Domek Przepiórka został zaprojektowany w konstrukcji drewnianej szkieletowej. Jego murowanym odpowiednikiem jest projekt Sosenka 2 znajdujący się w ofercie autorskiej pracowni architektonicznej MG Projekt. Pracownia dysponuje projektem domu Przepiórka w odbiciu lustrzanym, oraz wersją wariantową (projekt domu Przepiórka Wariant B) ze zmienionym układem pomieszczeń i dodatkowym pokojem na parterze.
