- Tylko online
Masz pytania? Chciałbyś negocjować cenę
Zadzwoń! 577 575 011
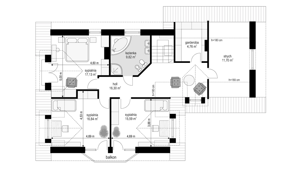
Projekt domu Przestronny to dom jednorodzinny dla rodziny 4- 5-osobowej, zaprojektowany z myślą o działkach z niekorzystnym dostępem do drogi. Salon został zaplanowany po tej samej stronie budynku co wejście. Funkcje te są jednak odgrodzone: w prawym narożniku zaprojektowano drzwi wejściowe do domu, podjazd do garażu - widziane z kuchennego narożnego okna. W projekcie domu Przestronny podcień i taras, będący przedłużeniem salonu znajdują się w lewym narożniku. Dostępne jest także odbicie lustrzane projektu. Zapraszamy!
