- Tylko online
Masz pytania? Chciałbyś negocjować cenę
Zadzwoń! 577 575 011
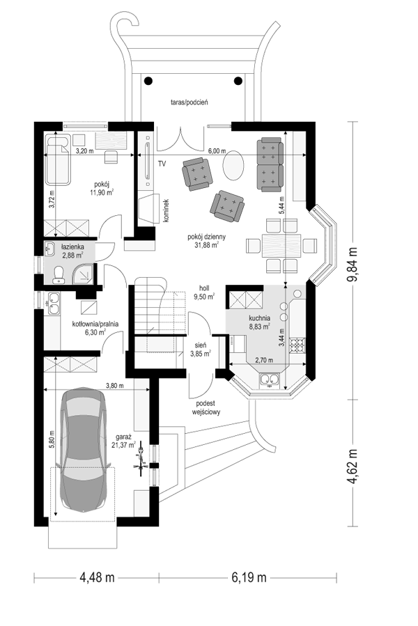
Projekt domu Przytulny to prawdziwy podmiejski dom, siedziba dla szczęśliwej rodziny. Dom emanuje spokojem, statecznością, ale również radością i energią - wszystko dzięki połączeniu tradycyjnych elementów architektury z nowoczesnością. Bryła budynku z wysuniętym do przodu garażem doskonale wkomponuje się w wąską działkę. Wnętrze projektu domu zaplanowano oddzielając część dzienną na parterze (gdzie oprócz salonu znajduje się również zaplecze techniczne i gabinet oraz łazienka) od sypialni na poddaszu. Na piętrze znajdują się trzy wygodne sypialnie, garderoba i łazienka. W projekcie domu Przytulny każda sypialnia ma wyjście na balkon. Dostępna jest również wersja projektu domu Przytulny w odbiciu lustrzanym.
