- Tylko online
Masz pytania? Chciałbyś negocjować cenę
Zadzwoń! 577 575 011
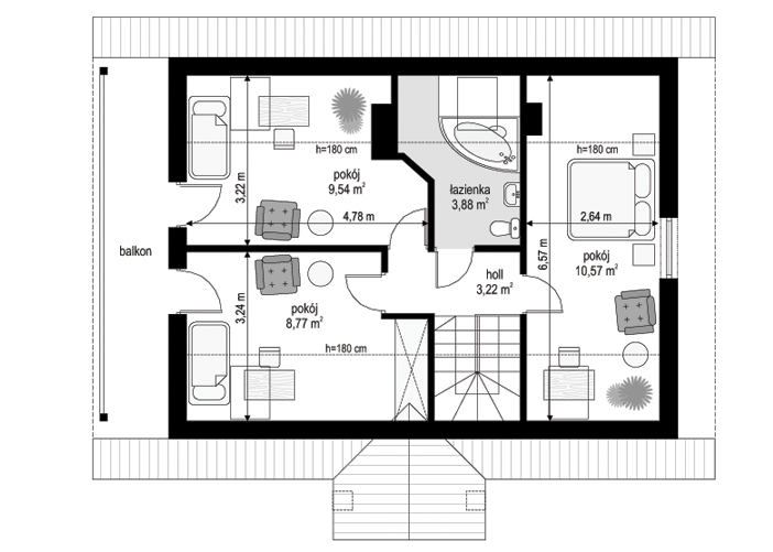
Projekt domu Radosny to domek dla szczęśliwej rodziny. Może pełnić rolę jednorodzinnego - może być też domem letniskowym. Prosta bryła budynku z dwuspadowym dachem ozdobiona jest gankiem wejściowym i zadaszonym balkonem na słupach. Parter domu Radosny zaprojektowany jest jako jednoprzestrzenne pomieszczenie, z dużą kuchnio-jadalnią i salonem. Na parterze można wygospodarować dodatkowy pokój przenosząc jadalnię do salonu. Na poddaszu zaplanowano trzy sypialnie. Dostępne jest również odbicie lustrzane projektu domu Radosny i projektu domu Radosny z garażem.
