- Tylko online
Masz pytania? Chciałbyś negocjować cenę
Zadzwoń! 577 575 011
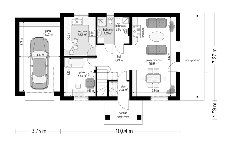
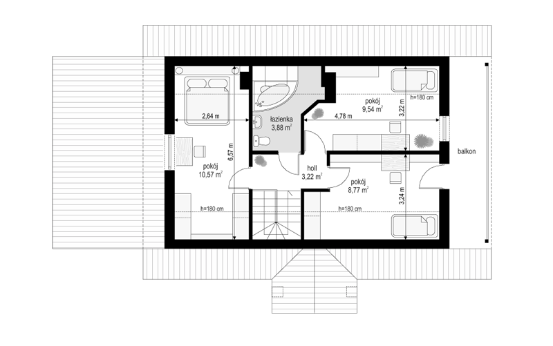
Projekt domu Radosny z garażem to wersja wariantowa projektu Radosny. Domek jest propozycją dla 4- 5-osobowej rodziny. Budynek jest niewielki, prosty w budowie, jednocześnie bardzo funkcjonalny i pełen uroku. Wnętrze zostało bardzo klarownie podzielone - na parterze po jednej stronie wejścia zaprojektowano salon - po drugiej kuchnię z jadalnią lub ewentualnie dodatkowym pokojem. Środek parteru stanowią komunikacja, kotłownia i wc. W projekcie Radosny z Garażem, na poddaszu znajdują się trzy sypialnie i łazienka. Z salonu na parterze dostępny jest duży zadaszony taras, na górze - balkon. Pracownia dysponuje projektem domu w odbiciu lustrzanym. Dostępne jest również odbicie lustrzane projektu domu Radosny i projektu domu Radosny z garażem.
