- Tylko online
Masz pytania? Chciałbyś negocjować cenę
Zadzwoń! 577 575 011
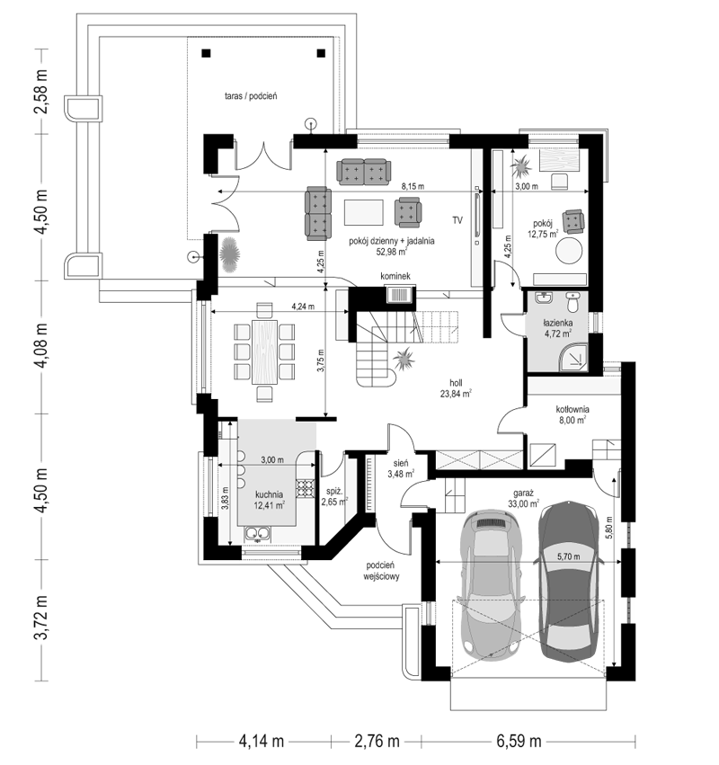
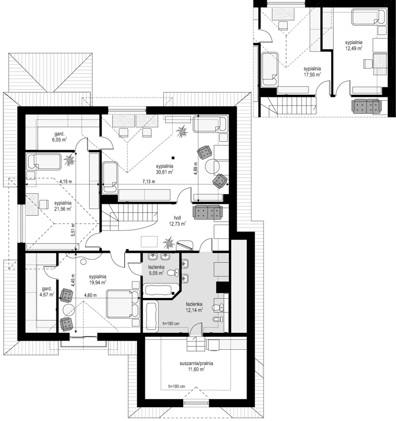
Projekt domu Rodzinny to idealny dom dla 4- 5-osobowej rodziny, parterowy z poddaszem. Poddasze ma bardzo wysokie ściany kolankowe, przez co dom sprawia wrażenie niemal budynku piętrowego, poprawia się też funkcjonalność pokoi na poddaszu. Architektura domu Rodzinny łączy tradycję i nowoczesność. Duże przeszklenia okien salonu i jadalni łączą wnętrze domu z ogrodem. Dom można wybudować zarówno na działce z ogrodem z tyłu jak i z boku. Pracownia dysponuje projektem domu Rodzinny w odbiciu lustrzanym.
