- Tylko online
Masz pytania? Chciałbyś negocjować cenę
Zadzwoń! 577 575 011
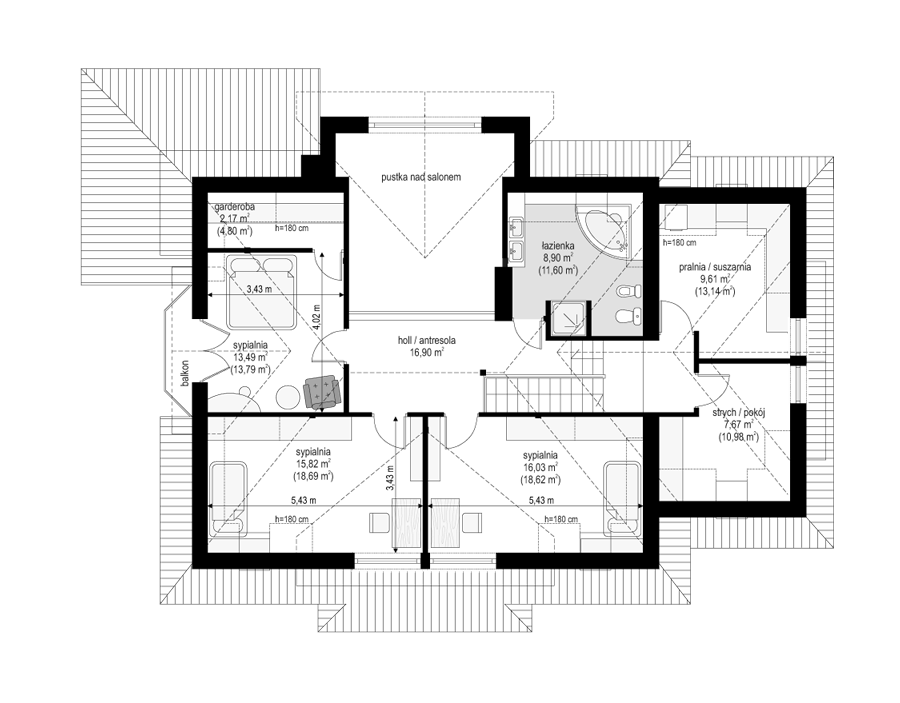
Projekt domu Rubin 2 to wariantowa wersja popularnego projektu Rubin - tym razem zmniejszona, z jednostanowiskowym garażem. Projekt domu przeznaczony jest dla 4- 5-osobowej rodziny. Parterowa bryła z poddaszem użytkowym, składa się z części mieszkalnej i dobudowanego z boku garażu. Całość przekryta jest wielospadowym dachem, z dużymi lukarnami na każdej elewacji. Spokojna podmiejska architektura domu, z ciekawymi detalami, jak wykusze, ganki z kolumnami, czy łukowe okna, łączy się z funkcjonalnie zaprojektowanym wnętrzem budynku. Szczególną atrakcją bryły jest duża lukarna frontowa z gankiem wejściowym i kolumnami, duży podcień ogrodowy, gdzie pod zadaszeniem można schronić się przed deszczem lub upalnym słońcem, oraz wielkie dwukondygnacyjne okno salonu, otwierające wnętrze na ogród. Wnętrze parteru to przede wszystkim otwarta przestrzeń dzienna, z salonem, jadalnią i holem. Salon częściowo otwarty jest na antresolę poddasza, dzięki czemu domownicy będą mogli cieszyć się zwiększoną przestrzenią pokoju dziennego. Na parterze zaplanowano też kuchnię, dodatkowy pokój - gabinet lub na przykład sypialnię gościnną, oraz kotłownię i garaż z zapleczem ogrodowym. W projekcie domu Rubin 2, na poddaszu zmieszczono cztery sypialnie z garderobami i szafami wbudowanymi, dużą łazienkę i pralnię-suszarnię. Z holu - antresoli na poddaszu otwiera się przez wysokie okno imponujący widok na salon pod spodem i ogród. Pracownia MGProjekt posiada też projekt domu Rubin w odbiciu lustrzanym i inne jego wersje: podstawowy projekt domu Rubin, projekt domu Rubin 2 oraz projekt domu Rubin 3.
