- Tylko online
Masz pytania? Chciałbyś negocjować cenę
Zadzwoń! 577 575 011
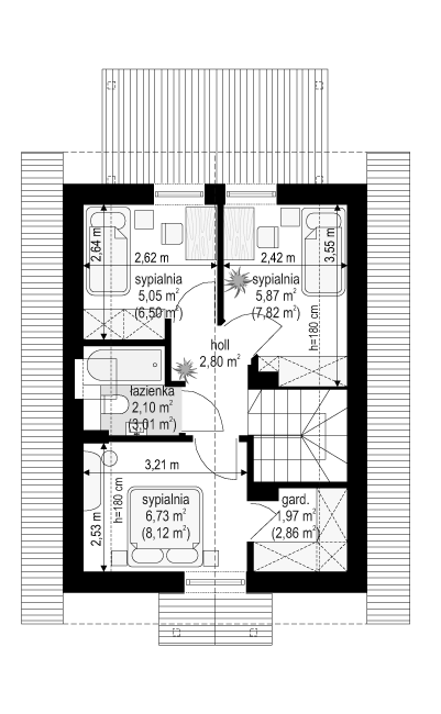
Projekt domu Smyk 2 to propozycja na niewielki dom jednorodzinny, przeznaczony dla 3- 4-osobowej rodziny. Projekt domu Smyk 2 jest wersją wariantową popularnego projektu domu Smyk z pracowni MGProjekt. W nowej wersji przewidziano pomieszczenie kotłowni, gdzie może być zainstalowany także kocioł na paliwo stałe. Dom został zaprojektowane na prostokątnym planie, z wejściem od szczytu budynku. Bryłę przekryto symetrycznym dwuspadowym dachem. Urody domowi dodają: frontowy ganek na drewnianych kolumienkach, oraz wygodna zadaszona weranda od strony elewacji ogrodowej. Architektura domku Smyk 2 jest bezpretensjonalna, idealnie wpasuje się w każde otoczenie. Połączenie tradycyjnej formy i nowoczesnych materiałów i technologii dają harmonijną całość. Dzięki krótszemu frontowi bryły, dom mieści się na wąską działkę. Z kolei wysokie ścianki kolankowe na poddaszu powodują, że poddasze ma małe „skosy”. Wnętrze podzielono na część dzienną na parterze i sypialnie na poddaszu. Na dole, pokój dzienny, aneks kuchenny i hol tworzą połączoną przestrzeń dzienną. Obok znajdują się schody na poddasze (z przydatnym schowkiem pod górnym biegiem schodów), łazienka, przedsionek z szafami i kotłownia. Na poddaszu zmieszczono sypialnie – dowolnie: dwie większe, lub trzy mniejsze, łazienkę, oraz garderobę z sypialni rodziców.Projekt domu Smyk 2 bez wątpienia jest projektem niewielkiego domu, ale dzięki swojej funkcjonalności mieści w sobie wszystkie pomieszczenia pozwalające na wygodne życie pełnowymiarowej rodzinie. Jednocześnie domek jest niedrogi i bardzo prosty w realizacji. Dodatkowo dzięki energooszczędnym rozwiązaniom koszty przyszłego użytkowania budynku będą niskie. Pracownia posiada odbicie lustrzane projektu. Zapraszamy!
