- Tylko online
Masz pytania? Chciałbyś negocjować cenę
Zadzwoń! 577 575 011
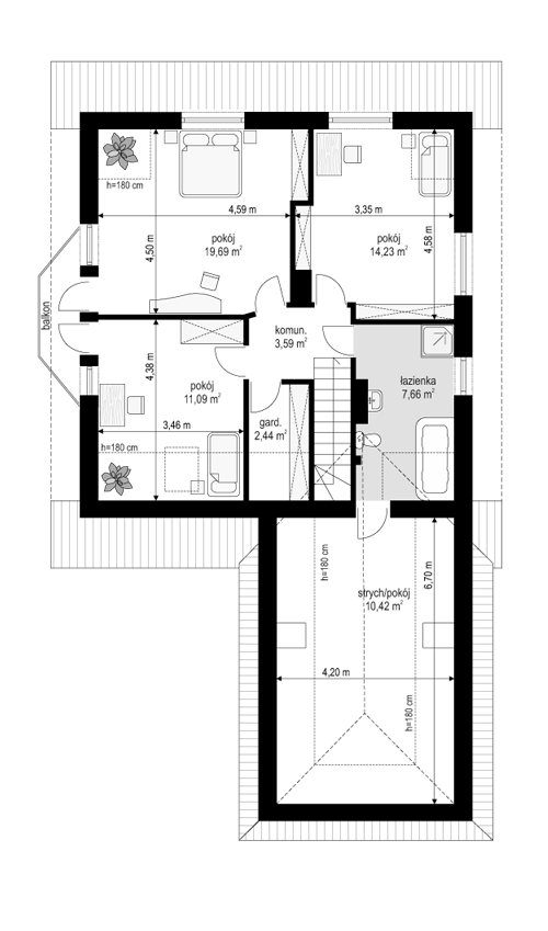
Projekt domu Solidny to domek parterowy z użytkowym poddaszem. Odpowiedni dla rodziny 4- 5-osobowej. Budynek ma zwartą bryłę, przekrytą dwuspadowym dachem z naczółkami, a od frontu dobudowany wygodny garaż. Na parterze budynku, oprócz pokoju dziennego z kominkiem i jadalnią z wykuszem zaprojektowano dodatkowy pokój i łazienkę. W domu Solidny, na poddaszu mieszczą się trzy sypialnie z łazienką i garderobą. Strych nad garażem można wykorzystać na pralnię-suszarnię lub magazyn dostępny z garażu. Domek doskonale nadaje się na wąską działkę. Pracownia posiada również wersję projektu domu Solidny w odbiciu lustrzanym.
