- Tylko online
Masz pytania? Chciałbyś negocjować cenę
Zadzwoń! 577 575 011
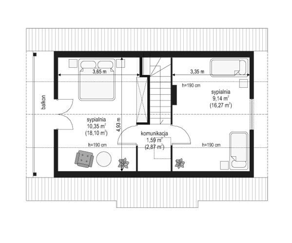
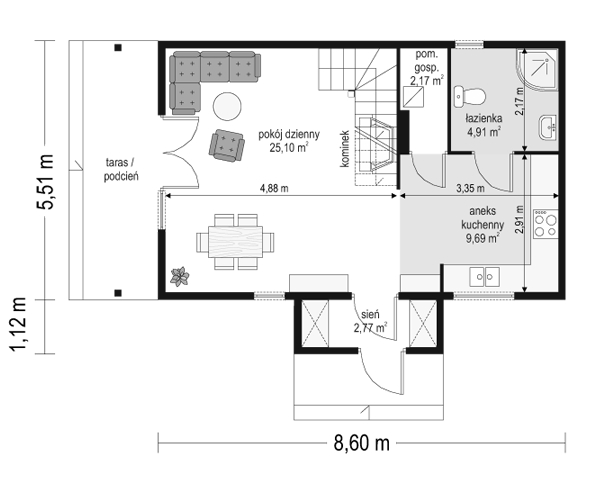
Projekt domu Sosenka 4, to wersja wariantowa projektu Sosenka. Budynek może pełnić funkcję całorocznego lub letniskowego. Dom został zaprojektowany w konstrukcji szkieletowej drewnianej. Jego prosta bryła zapewnia szybką i ekonomiczną budowę. Domek składa się z przestrzeni dziennej na parterze, z kuchnią, łazienką, gankiem wejściowym, pomieszczeniem gospodarczym. W projekcie Sosenka 4 na poddaszu znajdują się dwie sypialnie. Kominek i drewniane schody w salonie stanowią element dekoracyjny wnętrza. Zadaszony taras i balkon wsparty na słupach będą z pewnością doskonałym miejscem wypoczynku. W ofercie dostępne są inne wersje projektu: podstawowa (projekt domu Sosenka), ze schowkem przy kuchni i tarasem (projekt domu Sosenka 2), wersja o powierzchni 58,33m2 (projekt domu Sosenka 3), bardzo komfortowa (projekt domu Sosenka 5), najmniejszy (projekt domu Sosenka drewniana). Pracownia posiada również projekt Sosenka 4 w odbiciu lustrzanym.
