- Tylko online
Masz pytania? Chciałbyś negocjować cenę
Zadzwoń! 577 575 011
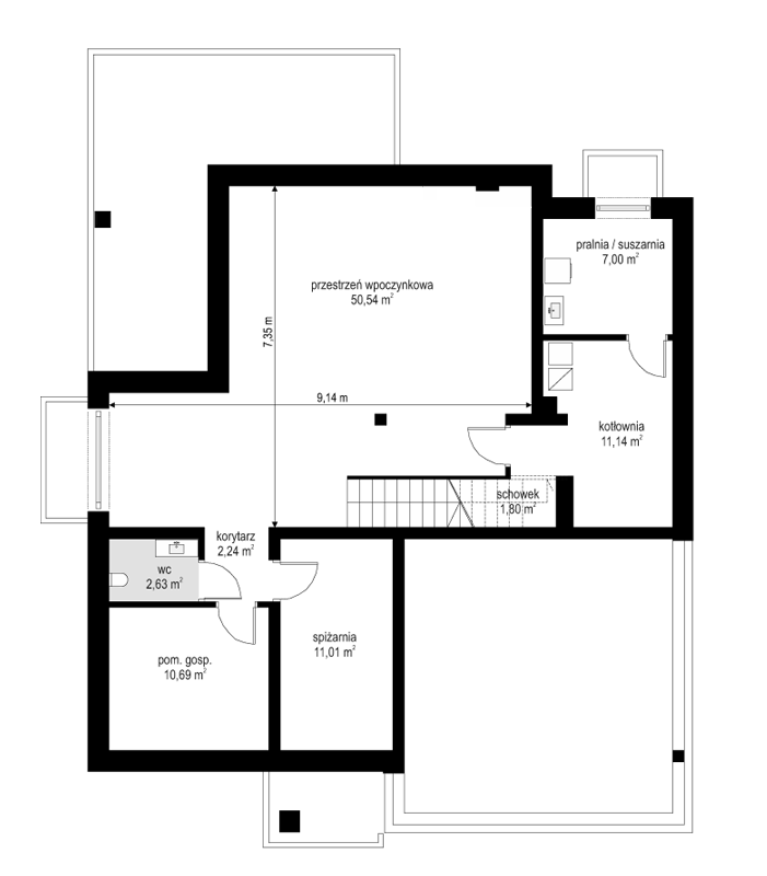
Projekt domu Sydney to piętrowa komfortowa willa miejska, z podpiwniczeniem i podwójnym garażem, przeznaczona dla 4- 6-osobowej rodziny. Projekt domu Sydney to wygodny nowoczesny dom, o ciekawej bryle i funkcjonalnie rozwiązanych wnętrzach. Dom jest energooszczędny - zastosowano w nim dobre materiały i technologie, aby podnieść komfort mieszkańców. Duże przeszklenia, okładziny ścian, kolorystyka - wszystko utrzymane jest w nowoczesnym stylu. Dodatkowe daszki, balkony, narożne okna urozmaicają bryłę domu. Wnętrze budynku podzielono na cześć dzienną na parterze i sypialnie na piętrze. Dodatkowo przewidziano piwnicę, która prócz pomieszczeń technicznych mieści w sobie dodatkową przestrzeń rekreacyjną. Na parterze zaprojektowaliśmy otwartą przestrzeń połączonych pomieszczeń salonu, jadalni, holu i dużej kuchni. W salonie przewidziano ścianę kominkową i TV. Z salonu i jadalni wychodzimy dużymi przeszkleniami na taras ogrodowy. Na parterze znajduje się też dodatkowy pokój, łazienka i garaż. Na piętrze mamy aż cztery pokoje sypialnie, w tym apartament rodziców z własną łazienką, garderobą i tarasem. Zaprojektowano też dużą ogólną łazienkę. W domu, prócz piwnicy, do wykorzystania jest dodatkowo strych nad piętrem. „Sydney” to prawdziwy dom - z piwnicą i strychem. Budynek mimo swej sporej powierzchni jest bardzo rozsądnie zaprojektowany - jego konstrukcja jest przejrzysta i dość prosta. Budynek ma zwartą bryłę. Projekt domu Sydney powinien być stosunkowo łatwy i niedrogi w budowie i niekosztowny w późniejszym utrzymaniu. Zapraszamy !
