- Tylko online
Masz pytania? Chciałbyś negocjować cenę
Zadzwoń! 577 575 011
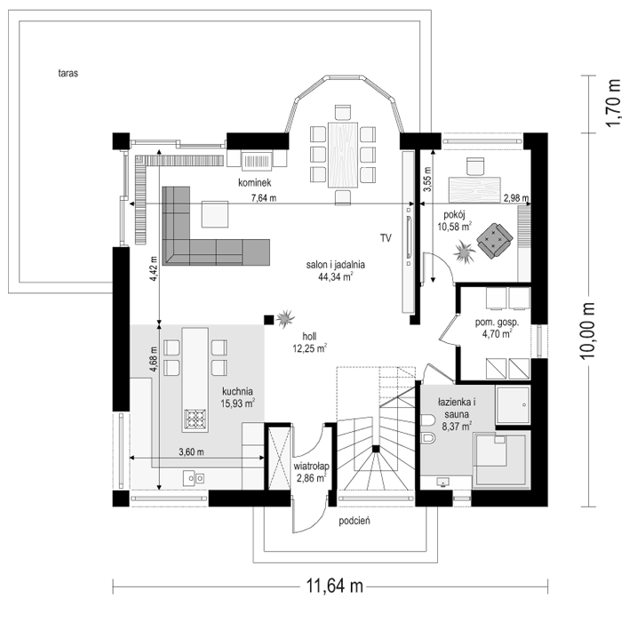
Projekt domu Szafir to piętrowy dom jednorodzinny, przeznaczony dla 4- 6-osobowej rodziny, o nowoczesnej architekturze i oryginalnych rozwiązaniach. Podstawową zaletą projektu domu Szafir jest jego prosta konstrukcja. Całość zbudowanego na planie prostokąta wnętrza ma tylko dwa słupy konstrukcyjne wewnątrz, dzięki czemu można dowolnie kształtować wnętrze – zarówno na parterze, jak i na piętrze. Dzięki monolitycznemu stropowi nad parterem, można zmieniać ustawienia ścianek działowych, zmniejszać lub zwiększać pokoje, tworzyć dodatkowe łazienki lub garderoby – wedle indywidualnych potrzeb Inwestora. W projekcie podstawowym zaproponowaliśmy następujący układ wnętrz: na parterze jednoprzestrzenna część dzienna, z holem, reprezentacyjnymi schodami, otwartą kuchnią z wyspą, salonem z kominkiem i ścianą TV, oraz jadalnią w pięknym łukowym wykuszu, dzięki któremu domownicy poczują się, jakby jedli posiłki w ogrodzie. Na parterze zaprojektowano dodatkowy pokój, pomieszczenie gospodarcze i łazienkę z sauną. Na piętrze mamy cztery sypialnie z dużymi szafami wbudowanymi, oraz piękną łazienkę. Wnętrze można oczywiście podzielić w inny sposób, pozostawiając tylko słupy konstrukcyjne i klatkę schodową. Dom jest energooszczędny – bardzo dobrze ocieplony, z wentylacją mechaniczną i z kotłem gazowym ( lub pompą ciepła na życzenie klienta ). Prosta konstrukcja domu Szafir ułatwi budowę, natomiast zwarta bryła i dobre izolacje pozwolą utrzymać koszty ogrzewania na niskim poziomie. Zapraszamy!
