- Tylko online
Masz pytania? Chciałbyś negocjować cenę
Zadzwoń! 577 575 011
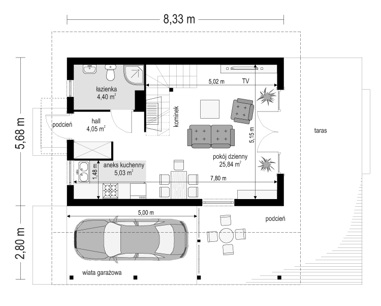
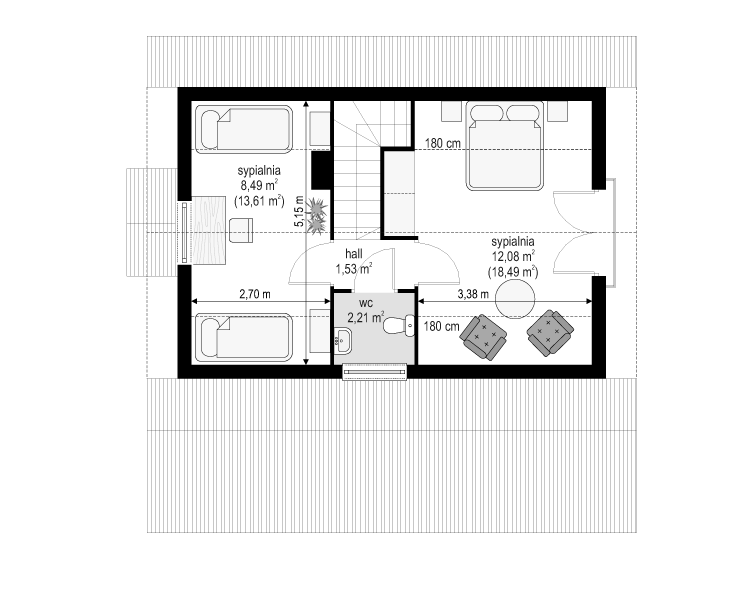
Projekt domu Szarejka to kolejny nieduży domek jednorodzinny z oferty pracowni MG Projekt. Może służyć zarówno jako całoroczny budynek mieszkalny jak i domek letniskowy. Projekt domu Szarejka ma bardzo prostą konstrukcję, zbudowaną na planie prostokąta. Bryła jest przekryta symetrycznym dwuspadowym dachem, z dobudowanym zadaszeniem wiaty garażowej i podcienia tarasu. Prosta bezpretensjonalna forma i detale wykończenia elewacji dają w efekcie ciekawy wygląd domku. Projekt domu Szarejka została zaprojektowana z myślą o maksymalnym otwarciu wnętrza na ogród - stąd duży, częściowo zadaszony taras, do którego dostajemy się z salonu przez szerokie przeszklone drzwi. Taras dopełnia wnętrze - stanowi jego przedłużenie. Będzie można na nim udanie spędzać czas również przy niepogodzie lub przy zbyt ostrym słońcu - dzięki dużemu podcieniowy. Wiata garażowa - bardzo przydatna, nawet jeśli nie będzie służyła dla samochodu, to może stanowić doskonałe schronienie dla drewna do kominka, czy sprzętów ogrodowych. Wnętrze domu to salon z aneksem kuchennym na parterze. W najbardziej wyeksponowanym miejscu salonu znajduje się kominek, oraz drewniane schody na poddasze. Na poddaszu znajdują się dwie sypialnie z dodatkową toaletą (poza łazienką na dole). Dom Szarejka został zaprojektowany w konstrukcji szkieletowej drewnianej. Budynek jest ogrzewany kominkiem i elektrycznymi grzejnikami. Z uwagi na bardzo dobre docieplenie przegród będzie ekonomiczny w późniejszej eksploatacji - nie wymaga dużo energii do ogrzania wnętrza. Pracownia dysponuje też projektem domu Szarejka w wersji odbicia lustrzanego.
