- Tylko online
Masz pytania? Chciałbyś negocjować cenę
Zadzwoń! 577 575 011
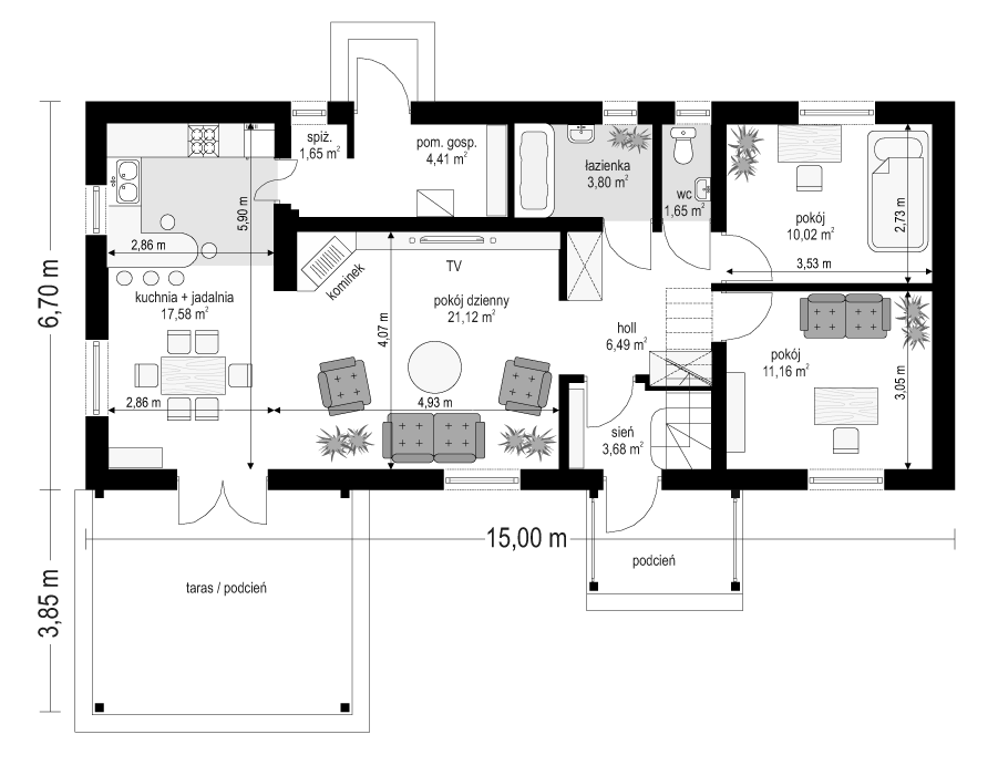
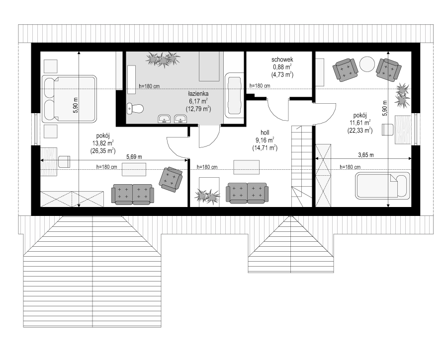
Projekt domu Szczygieł to domek jednorodzinny parterowy, z poddaszem użytkowym. Dom Szczygieł może służyć jako dom jednorodzinny całoroczny, jak również jako budynek letniskowy. Prostokątna bryła została przekryta dwuspadowym dachem poddasza. Do niej dobudowano podcień ogrodowy - z wyjściem z salonu, oraz podcień - ganek wejściowy. Dom doskonale nadaje się na działkę z wejściem od południa lub zachodu - tam, gdzie ogród i wejście są po tej samej stronie domu. Projekt domu Szczygieł ma prostą konstrukcję - jest łatwy i niedrogi w budowie. We wnętrzu na parterze zaplanowano salon z częścią jadalną, otwartą kuchnię - połączoną z pomieszczeniem gospodarczym, łazienkę z toaletą, oraz dwa pokoje, które mogą być wykorzystane jako sypialnie, bądź np. jako gabinet. Na poddaszu zaprojektowano dwie sypialnie i łazienkę. Poddasze można wykończyć w drugim etapie budowy. Projekt domu Szczygieł dostępny jest też jako odbicie lustrzane.
