- Tylko online
Masz pytania? Chciałbyś negocjować cenę
Zadzwoń! 577 575 011
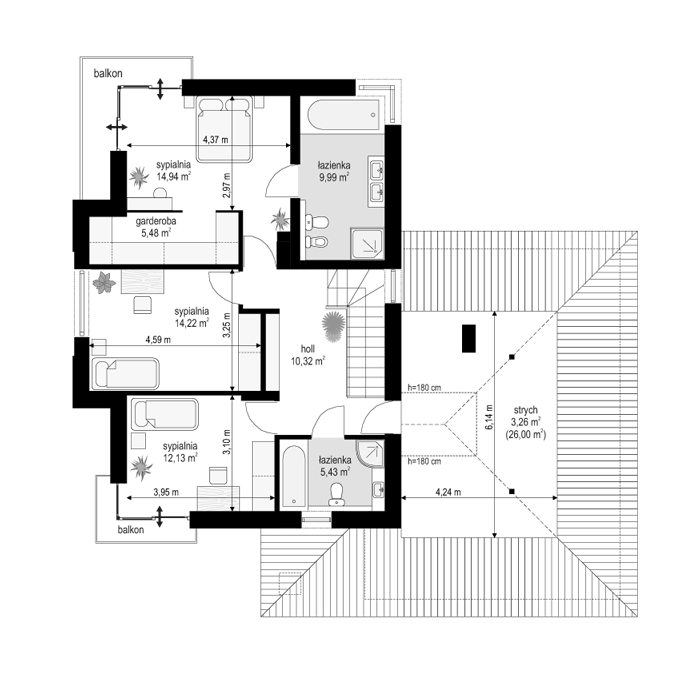
Projekt domu Turkus jest piętrowym budynkiem, przystosowanym dla 4- 5-osobowej familii. Domek przekryty został czterospadowym dachem, z dobudowanym garażem. Dom zaprojektowano jako elegancką, łączącą w sobie nowoczesność i tradycję niedużą miejską willę. Budynek ma zwartą energooszczędną bryłę, dość prostą konstrukcję i jest łatwy w budowie. Górna kondygnacja jest piętrem - sypialnie nie mają więc "skosów". Połączenie klasycznego kształtu z ciekawymi detalami, takimi jak narożne okna, podcienie, wykusze, fragmenty ścian obłożone klinkierem, lub fragmenty boniowanej elewacji, tworzą spójną całość. Projekt domku Turkus jest jednocześnie unikalny i powściągliwy w swym wyrazie. Wnętrze Turkusa podzielono na część dzienną na parterze, oraz sypialnie na piętrze. Parter to jednoprzestrzenne wnętrze salonu, aneksu jadalnego, holu i częściowo otwartej kuchni. Zaplanowano tu również dodatkowy pokój (np. gabinet) i zaplecze techniczne - garaż wraz z kotłownią. Na parterze na uwagę zasługują pięknie wyeksponowane schody na piętro i centralnie ustawiony w salonie kominek. Na piętrze zaprojektowano trzy sypialnie z łazienkami, w tym apartament rodziców z własną garderobą, łazienką i balkonem z widokiem na ogród. Dodatkowo można zagospodarować strych nad garażem - dostępny z holu piętra. Pracownia posiada także odbicie lustrzane projektu domu Turkus.
