- Tylko online
Masz pytania? Chciałbyś negocjować cenę
Zadzwoń! 577 575 011
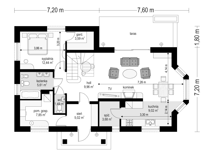
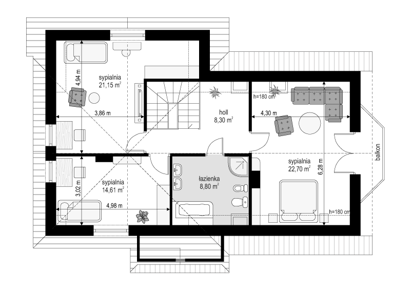
Projekt domu Wesoły to niewielki domek jednorodzinny o ciekawej bryle. Posiada przecinające się krzyżowo dwuspadowe dachy. Tworzą one budynek w kształcie litery L - osłaniającą taras od strony ogrodu. Projekt Wesoły charakteryzuje się prostą konstrukcją, urozmaiconą ciekawym portykiem wejściowym, wykuszem jadalni, dającymi atrakcyjną całość. Wnętrze domu Wesoły to na parterze prócz salonu zaprojektowano dodatkowy pokój mogący służyć np. za sypialnię. Na poddaszu mieszczą się trzy wygodne pokoje z łazienką. Na parterze salon i holl z wyeksponowanymi schodami tworzą jedno duże wnętrze. Częściowo otwarta kuchnia potęguje wrażenie przestrzenności. Pracownia posiada również projekt Wesoły w odbiciu lustrzanym.
