- Tylko online
Masz pytania? Chciałbyś negocjować cenę
Zadzwoń! 577 575 011
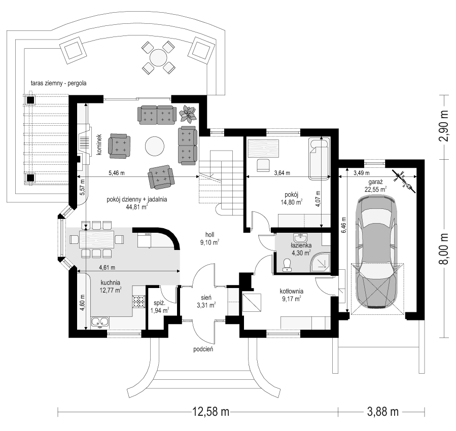
Projekt domu Willowy to piętrowy domek jednorodzinny, nawiązujący swoim wyglądem do śródziemnomorskich willi, doskonale wpasowujący się w podmiejską zabudowę jednorodzinną. Dom Willowy, dzięki dwu pełnym kondygnacjom zajmuje na działce niewielką powierzchnię. Ponadto pokoje na poddaszu nie mają „skosów” - tak częstych w domach z wielospadowymi dachami. Obszerny strych nad pierwszym piętrem daje dodatkową, zapasową przestrzeń, podobnie jak strych nad garażem. Domek pomieści dużą - nawet 6- 7-osobową rodzinę. W projekcie domu Willowy, na parterze zaprojektowano duży salon z aneksem jadalnym, otwarty przestrzennie na holl i eleganckie schody. Na parterze zmieszczono również dodatkowy pokój i zaplecze gospodarcze. Na piętrze mieszczą się cztery sypialnie i dwie łazienki - jedna z połówek piętra może być apartamentem rodziców, z odrębną łazienką i własnym wejściem. Pracownia posiada wersję odbicia lustrzanego projektu domu Willowy.
