- Tylko online
Masz pytania? Chciałbyś negocjować cenę
Zadzwoń! 577 575 011
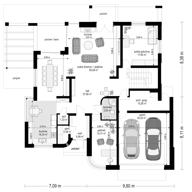
Projekt domu Wiola to budynek jednorodzinny dla 5- 6-osobowej, dużej rodziny. Piętrowy przykryty czterospadowym łagodnym dachem z dachówki ceramicznej. Wygląd zewnętrzny domu utrzymany jest w stylu podmiejskiej luksusowej willi - nowoczesnej, ale jednocześnie z elementami tradycji. Wnętrze domu ukształtowano z podziałem na część ogólną, dzienną na parterze, z salonem, jadalnią, półotwartym holem z pięknymi schodami, oraz część prywatną, nocną - na piętrze, z czterema sypialniami i dodatkowym pokojem. W projekcie domu Wiola sypialnia rodziców stanowi osobny apartament z własną oddzielną łazienką i garderobą. Na parterze, oprócz części dziennej salonu, jadalni i holu zaprojektowano gabinet i dodatkowy pokój - sypialnię gościnną. Z salonu i jadalni zaplanowano szerokie przeszklone otwarcia na ogród, przez dwa niezależne tarasy, podcień oraz pergolę. Pracownia posiada projekt domu Wiola również w odbiciu lustrzanym.
