- Tylko online
Masz pytania? Chciałbyś negocjować cenę
Zadzwoń! 577 575 011
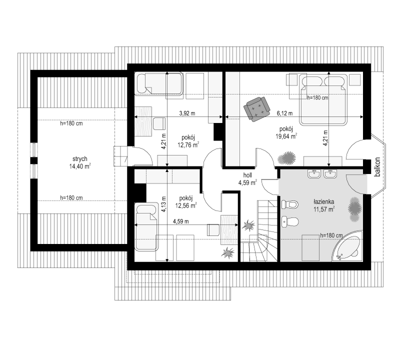
Projekt domu Zgrabny z przedsionkiem to projekt domu dla rodziny 4- 5-osobowej. Powstały jako urozmaicona wersja projektu domu Zgrabny. Budynek poszerzony o 1m i z dodanym przedsionkiem. Wnętrze funkcjonalne i reprezentacyjna architektura. Na parterze oprócz salonu zaprojektowano dodatkowy pokój i łazienkę. Na poddaszu mieszczą się trzy sypialnie, duża łazienka i strych nad garażem. Pracownia dysponuje także wersją projektu domu Zgrabny z przedsionkiem w odbiciu lustrzanym oraz inne jego wersje: projekt domu Zgrabny, projekt domu Zgrabny 2, projekt domu Zgrabny 3, projekt domu Zgrabny 4, projekt domu Zgrabny 5, projekt domu Zgrabny z lukarnami. Zapraszamy!
