- Tylko online
Masz pytania? Chciałbyś negocjować cenę
Zadzwoń! 577 575 011
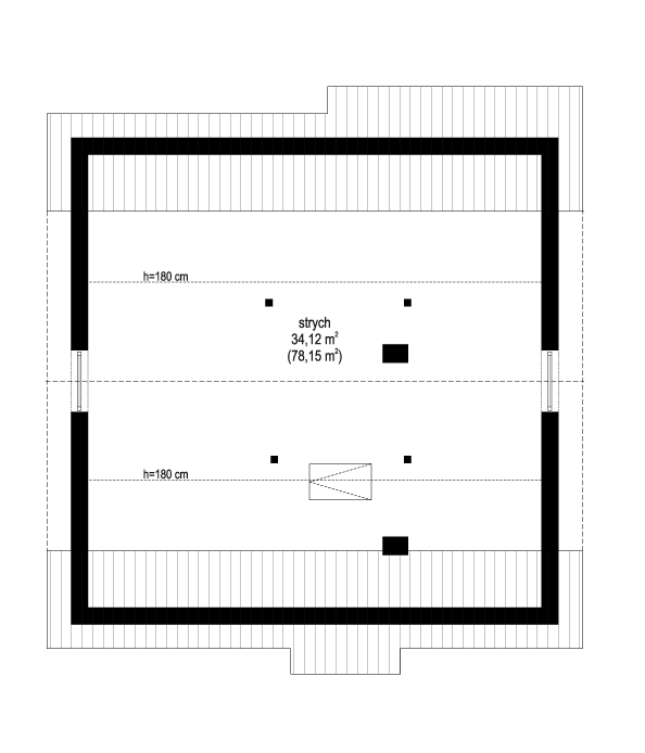
Wariant projektu ze zmienionym stropem na drewniany, zamiana wiązarów na klasyczną więźbę, doprojektowane okna w ścianie szczytowej na strychu/poddaszu. Możliwość zaadoptowania strychu na cele mieszkalne.
