- Tylko online
Masz pytania? Chciałbyś negocjować cenę
Zadzwoń! 577 575 011
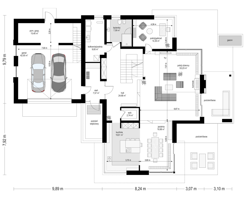
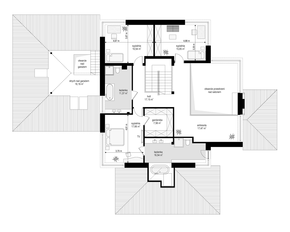
Projekt domu Dom z Widokiem 4 jest kolejną wersją popularnego projektu Dom z Widokiem. Jest to bardzo komfortowa podmiejska willa dla 4-6 osobowej rodziny. Dom składa się z piętrowej głównej bryły i dodanych parterowych mniejszych części. Całość tworzy układ litery „T”. Budynek można ustawić na działce tak, aby ściana z drzwiami wejściowymi i bramą garażową była frontem lub bokiem do drogi dojazdowej -w zależności od sytuacji. Ogród, tarasy i główne przeszklenia są wówczas usytuowane w przeciwległym narożniku działki. Także dom można postawić zarówno na działce z niekorzystnym nasłonecznieniem - z ogrodem od frontu, czy boku, ale również z ogrodem z tyłu domu. Nowoczesna architektura domu wpasuje się doskonale zarówno w ścisłą willową zabudowę, jak i w wiejski teren. Charakterystycznym elementem są tutaj duże narożne okna, okapy łagodnych dachów, oraz elewacje podzielone na pasy wykończone różnymi materiałami, jak tynk, kamień, czy drewno. Projekt domu Dom z widokiem 4 ma nowoczesną, ale stonowaną architekturę. Emanuje z niej spokój i elegancja. Dzięki połączeniu dobrych sprawdzonych detali architektura domu nigdy się nie zestarzeje i nie wyjdzie z mody. Jednymi z głównych atrakcji wilii są jej przeszklenia - największą jest dwukondygnacyjny szklany narożnik salonu, łączący pokój dzienny z pustką z tarasem i ogrodem. Pozostałe przeszklenia : w jadalni, w kuchni, sypialniach, czy przy wejściu do domu, dodatkowo potęgują efekt otwartości wnętrza. Przestrzeń jest luksusem - wnętrze domu zagospodarowano kierując się tą myślą. Parter to w dużej mierze otwarta część dzienna - salon, jadalnia, hol, kuchnia. Na parterze zmieściliśmy dodatkowy pokój - gabinet. Piętro to sypialnie rodziców i dzieci, z łazienkami i garderobami. Na piętrze mieści się duża antresola nad salonem , którą można wykorzystać jako dodatkowy pokój. Projekt domu Dom z widokiem 4 to dom dla ludzi wyjątkowych, z wizją, z pragnieniem życia w nietuzinkowym otoczeniu, wśród pięknych wnętrz. Dostępna jest także wersja domu w odbiciu lustrzanym (garaż po prawej stronie), oraz: Dom z Widokiem, Dom z Widokiem 2, Dom z Widokiem 2C, Dom z Widokiem 3, Dom z Widokiem 3F, Dom z Widokiem 5, Dom z Widokiem 6, Dom z Widokiem 6B, Dom z Widokiem B, Dom z Widokiem E.
