- Tylko online
Masz pytania? Chciałbyś negocjować cenę
Zadzwoń! 577 575 011
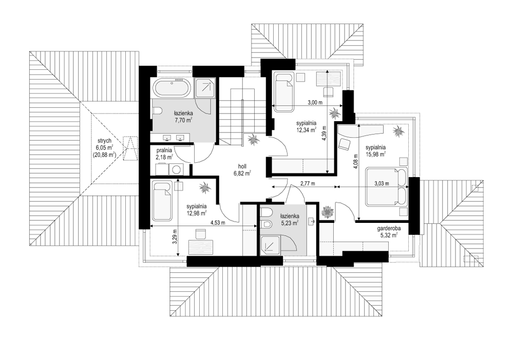
Projekt domu Dom z Widokiem 5 to nowość z cieszącej się popularnością serii projektów „Dom z Widokiem”, najmniejszy wariant tego projektu. Dom przy niewielkiej powierzchni i umiarkowanych kosztach budowy zawiera większość elementów i detali architektonicznych pierwotnego projektu, a jednocześnie ma wygodne i funkcjonalne wnętrze. Projekt domu Dom z Widokiem 5 to budynek piętrowy, przykryty wielospadowym dachem. Jego główna bryła ma dach kopertowy. Do rdzenia domu dobudowano fragment piętrowy, oraz kilka parterowych części: nad garażem, kuchnią czy nad zadaszeniem tarasu. Całość sylwetki domu to jest atrakcyjna i nowoczesna, ozdobiona ciekawymi detalami, kamiennymi okładzinami ścian i dużymi przeszkleniami otwierającymi wnętrze na ogród. Wejście do domu zaakcentowano narożnym podcieniem i szerokimi drzwiami z naświetlami. Narożne okno kuchenne daje szeroki widok na podjazd i wejście na działkę. Elewacja ogrodowa to przede wszystkim piękne narożne okna salonu i sypialni rodziców powyżej, oraz praktyczne zadaszenie nad częścią tarasu. Wnętrze: na parter wchodzimy przez przestronny przedsionek z szatnią i przejściem do garażu, oraz kotłowni, wprost do holu otwierającego się na salon i reprezentacyjne schody. Kuchnia ze spiżarką znajduje się blisko wejścia. Salon z wydzielonym aneksem jadalnym otwiera dom na otaczający go taras. Na parterze znajduje się jeszcze dodatkowy pokój - np. gabinet. Na piętrze mamy trzy sypialnie i dwie łazienki oraz pralnię. Sypialnie dzieci mają wbudowane szafy. Sypialnia rodziców to osobny apartament z własną łazienką i garderobą, oraz pięknym widokiem na ogród. Projekt domu Dom z Widokiem 5 jest zgrabny i praktyczny - jest spełnieniem marzeń o podmiejskiej wilii dla Inwestorów, którzy nie planują wydać na nią dużych pieniędzy, lub nie dysponują zbyt wielką działką. Dom jest energooszczędny, dość prosty i niedrogi w budowie. Bardzo łatwo można przystosować projekt do standardu NF40. Zapraszamy do zapoznania się z pełną ofertą pracowni MG Projekt tej serii: Dom z Widokiem, Dom z Widokiem 2, Dom z Widokiem 2C, Dom z Widokiem 3, Dom z Widokiem 3F, Dom z Widokiem 4, Dom z Widokiem 6, Dom z Widokiem 6B, Dom z Widokiem B, Dom z Widokiem E.
